
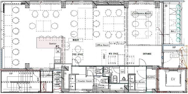
JR山手線・京浜東北線【田町駅】徒歩5分、都営三田線【三田駅】徒歩8分。運河沿いの開放的な立地と、都心の利便性を兼ね備えた新築セットアップオフィスが登場いたします!執務室内は最大21席確保することが可能で、6名様用会議室の造作が1つ設置されます。指定保証会社のご利用により敷金なしでご入居いただくことが可能で、初期費用を抑えその分他の事業資金へ充てることができます。原状回復義務も無しのため、退去時のコストも削減ができます。内装はこだわった設計が施されており、このオフィスで働く方々のモチベーションアップに繋がってほしいという思いが込められております。是非一度ご内覧ください。お問い合わせお待ちしております。
※掲載写真はイメージCGとなる為、工事の過程で内容等に変更が生じる場合がございます。掲載内容とお引渡し状態が異なる場合は現況を優先させていただきます。
OVERVIEW
- 物件No.
- 2-3695
- 募集期間
- ご成約まで
- 所在地
- 港区芝浦
- 最寄駅
-
JR山手線
田町駅 徒歩5分
JR京浜東北線
田町駅 徒歩5分
東京都交通局三田線
三田駅 徒歩8分
- 面積
- 35.41坪 / 117.09㎡
- 会議室
- 6名掛け会議室×1
- 推奨人数
- 10~11人
- 構造
- 鉄筋コンクリート造
- 規模
- 8階建
- 施工
- 2026年
- エレベーター
- 1基
- 天井の高さ
- 2,800mm
- 空調
- 個別空調
- トイレ
- 専用 男女別 洋式
- 床使用
- OAフロア+タイルカーペット
- 賃料
- 1,310,170円
- 共益費
- 賃料に含む
- 預託金
- 無
- 契約期間
- 2年
- 引き渡し時期
- 2026年2月予定
- その他
- 更新料:新賃料の1ヶ月分/ 償却:無/ 礼金:無/ 契約形態:普通賃貸借契約/ その他:契約の際には、貸主指定の保証会社と保証委託契約を締結していただきます。※与信状況によって預託金額が変動する場合がございます。/原状回復工事無し(原状変更した場合や破損等を除く)/
現在オンライン内覧が可能です
オンライン内覧について詳しくはこちら
CHECK IT!
この物件についてもっと詳しく
そのまんまオフィス会員
3つのメリット
-

物件の
詳細情報の公開 -

新着物件を
お知らせ -

未公開物件を
ご紹介











