
JR山手線・東京メトロ銀座線【神田駅】まで徒歩わずか2分。都内主要エリアへのアクセスに優れており、通勤利便性の高い立地です。建物の竣工年はやや古めですが、新耐震基準を満たしており、安全性も確保された安心のオフィス物件です。貸室内は12〜16席程度の執務スペースに加え、倉庫スペースも確保されているため、多様な業務スタイルに対応可能。コンパクトながらも機能性に優れたオフィス空間となっております。さらに、建物1〜2階にはカフェが併設されており、社内外の打合せやリフレッシュにも最適です。周辺にはオフィスビルや飲食店が多数立ち並び、ランチタイムの選択肢も充実。徒歩1分圏内には千代田区の公衆喫煙所もございます。ぜひ、お気軽にお問い合わせください!
※掲載写真とお引渡し状態が異なる場合は現況を優先させていただきます。
OVERVIEW
- 物件No.
- 2-3463
- 募集期間
- ご成約まで
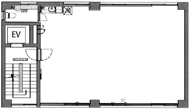
- 所在地
- 千代田区内神田
- 最寄駅
-
JR山手線
神田駅 徒歩2分
東京メトロ銀座線
神田駅 徒歩2分
東京メトロ丸ノ内線
淡路町駅 徒歩6分
- 面積
- 24.66坪 / 81.52㎡
- 会議室
- 無し
- 推奨人数
- 12~16人
- 構造
- 鉄骨鉄筋コンクリート造
- 規模
- 8階建
- 施工
- 1974年
- エレベーター
- 1基
- 天井の高さ
- ―
- 空調
- 個別空調
- トイレ
- 共用 男女共用 洋式
- 床使用
- ―
- 賃料
- 437,500円
- 共益費
- 74,000円
- 預託金
- 賃料の6ヶ月分
- 契約期間
- 2年
- 引き渡し時期
- ご相談
- その他
- 再契約料:新賃料の1ヶ月分/ 償却:賃料の1ヶ月分/ 礼金:賃料の1ヶ月分/ 契約形態:定期建物賃貸借契約/ その他:契約の際には、貸主指定の保証会社と保証委託契約を締結していただきます。/
現在オンライン内覧が可能です
オンライン内覧について詳しくはこちら
CHECK IT!
この物件についてもっと詳しく
そのまんまオフィス会員
3つのメリット
-

物件の
詳細情報の公開 -

新着物件を
お知らせ -

未公開物件を
ご紹介














