
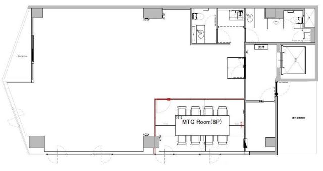
当ビルが所在する「内神田(うちかんだ)」は、東京の中心部に位置し、ビジネスと歴史が融合するエリアです。江戸時代から続く商業の中心地としての歴史を持ち、現在も多くの企業が集まるビジネス街として栄えています。また、古くからの商店や飲食店が立ち並び、歴史的な雰囲気を感じながらも、現代的な利便性を享受できる場所です。大手町駅、神田駅へのアクセスが良く、通勤やビジネスの移動がスムーズに行えます。貸室内はセットアップオフィスとして什器付きの8名用会議室造作が設置されております。さらに、ワンフロア1テナントの入居かつセキュリティシステムも充実しており、安心して業務に集中できる環境が提供されています。少しでも目に留まりましたらお気軽にお問い合わせください。
※掲載写真は他フロアのリニューアル写真となります。現在、リニューアル工事中の為、内容について変更が生じる場合がございます。掲載内容と現況が異なる場合は現況を優先させていただきます。
※執務室什器設置(フルセットアップ)相談可能です。
OVERVIEW
- 物件No.
- 2-3482
- 募集期間
- ご成約まで
- 所在地
- 千代田区内神田
- 最寄駅
-
東京メトロ丸ノ内線
大手町駅 徒歩4分
東京メトロ半蔵門線
大手町駅 徒歩4分
JR山手線
神田駅 徒歩7分
- 面積
- 38.08坪 / 125.88㎡
- 会議室
- 8名掛け会議室×1
- 推奨人数
- 15~20人
- 構造
- 鉄骨造・鉄筋コンクリート造
- 規模
- 地下1階付10階建
- 施工
- 1987年
- エレベーター
- 1基
- 天井の高さ
- ー
- 空調
- 個別空調
- トイレ
- 専用 男女別 洋式
- 床使用
- OAフロア
- 賃料
- 875,840円
- 共益費
- 無
- 預託金
- 賃料の6ヶ月分
- 契約期間
- 3年
- 引き渡し時期
- 2025年8月下旬予定
- その他
- 更新料:無/ 償却:無/ 礼金:無/ 契約形態:普通賃貸借契約/ その他:契約の際には、貸主指定の保証会社と保証委託契約を締結していただきます。/
現在オンライン内覧が可能です
オンライン内覧について詳しくはこちら
CHECK IT!
この物件についてもっと詳しく
そのまんまオフィス会員
3つのメリット
-

物件の
詳細情報の公開 -

新着物件を
お知らせ -

未公開物件を
ご紹介













