
中央区新富に会議室・テラス付きセットアップオフィスが登場!高級感を感じさせる温かくも存在感がある開放的なアプローチとなっており、落ち着きと品格のあるエントランスとなっております。また、貸室内はガラスパーテーションの機能的な会議室、明るく開放的なリフレッシュスペース、大きな窓面の開放感溢れる魅力的なオフィス空間となっております。屋上にはスカイツリーを望むことができるウッドデッキのテラス付き。【新富町駅】まで徒歩3分に位置しており、【東京駅】へも徒歩圏内と利便性にも優れています。室内は、受付・執務室・会議室2つ(6名用)がついておりますが1つは執務室の中に部屋があるので社長室にすることも可能です!一度ご覧いただいたら気に入っていただけること間違いなしの物件です♪是非一度ご覧くださいませ!
※掲載写真とお引渡し状態が異なる場合は現況を優先させていただきます。
photographer:星野 佑
OVERVIEW
- 物件No.
- 2-3496
- 募集期間
- ご成約まで
- 所在地
- 中央区新富
- 最寄駅
-
東京メトロ有楽町線
新富町駅 徒歩3分
東京メトロ日比谷線
八丁堀駅 徒歩5分
東京都交通局浅草線
宝町駅 徒歩6分
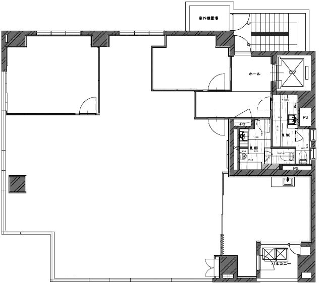
- 面積
- 55.85坪 / 184.63㎡
- 会議室
- 6名掛け会議室×2
- 推奨人数
- 25~28人
- 構造
- 鉄骨鉄筋コンクリート造
- 規模
- 9階建
- 施工
- 1992年
- エレベーター
- 1基(9人乗)
- 天井の高さ
- ―
- 空調
- 個別空調
- トイレ
- 専用 男女別 洋式
- 床使用
- OAフロア
- 賃料
- 1,340,400円
- 共益費
- 賃料に含む
- 預託金
- 賃料の7ヶ月分
- 契約期間
- 2年
- 引き渡し時期
- 即日
- その他
- 更新料:無/ 償却:無/ 礼金:無/ 契約形態:普通賃貸借契約/ その他:契約の際には、SFビルサポート株式会社と保証委託契約を締結していただきます。※与信状況によって預託金額が変動する場合がございます。/
現在オンライン内覧が可能です
オンライン内覧について詳しくはこちら
CHECK IT!
この物件についてもっと詳しく
そのまんまオフィス会員
3つのメリット
-

物件の
詳細情報の公開 -

新着物件を
お知らせ -

未公開物件を
ご紹介


















