
東京メトロ丸ノ内線【新大塚駅】まで徒歩5分、有楽町線【護国寺駅】まで徒歩8分、二路線利用可能な立地で、都心にありながらも落ち着いた環境と利便性を兼ね備えたエリアにセットアップオフィスが誕生します。周辺には教育機関や医療施設、公園が点在し、安心して働ける環境が整っており、集中して業務に取り組みたい企業様にとって理想的なロケーションです。1987年竣工の建物ながら、2025年7月にリニューアル工事完了しており、現代のビジネスニーズに対応した快適なオフィス環境が整っています。高級感がありながら、グリーンを配した落ち着いた雰囲気の美しいエントランスがお客様をお迎えします。各フロアのエントランスも知性と品位を醸す仕上がりとなっており、貸室内は、受付・会議室2部屋(8名用×2)・ラウンジスペースを設置しております。執務室は窓面が多く明るい整形の区画に配置し、今後の増員も見据えた効率的なレイアウトが可能です。個別空調や男女別トイレ、光ケーブル対応など、機能面も充実。エレベーターは2基設置されており、移動もスムーズです。是非一度ご内覧ください。
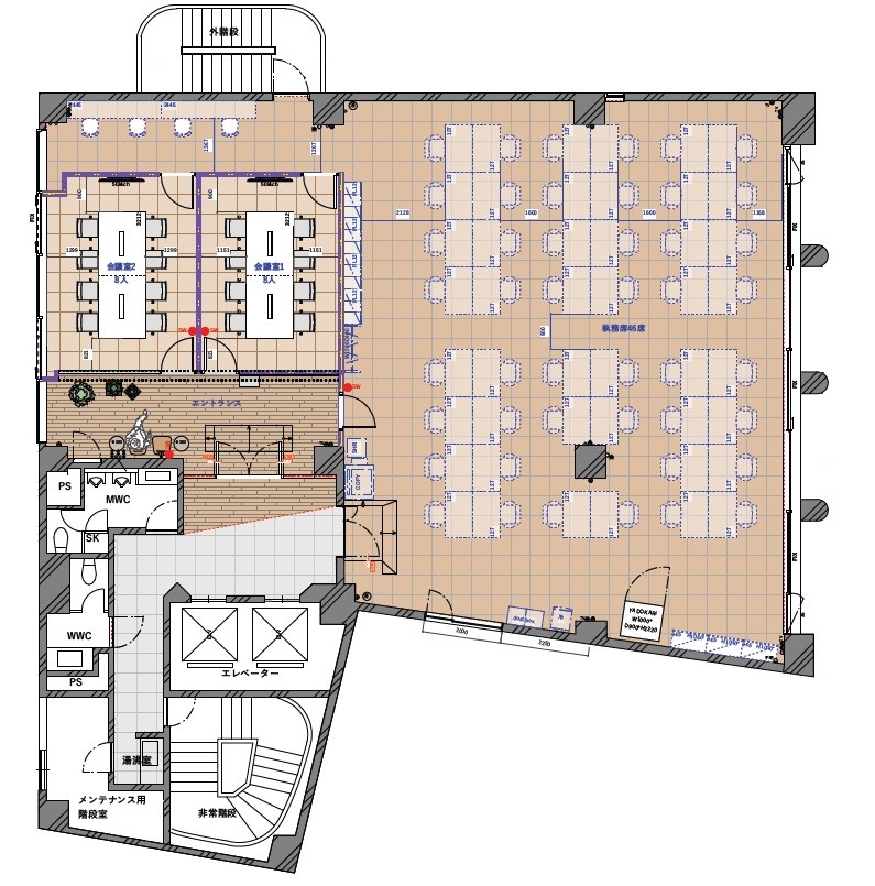
※掲載中の図面はイメージレイアウトとなります。
※掲載写真と現況のお引渡し状態が異なる場合は、現況を優先させていただきます。
OVERVIEW
- 物件No.
- 2-3577
- 募集期間
- ご成約まで
- 所在地
- 文京区大塚
- 最寄駅
-
東京メトロ丸ノ内線
新大塚駅 徒歩5分
東京メトロ有楽町線
護国寺駅 徒歩8分
JR大塚駅 徒歩13分
- 面積
- 76.83坪 / 253.98㎡
- 会議室
- 8名掛け会議室×2
- 推奨人数
- 40~45人
- 構造
- 鉄骨鉄筋コンクリート造
- 規模
- 地下2階付8階建
- 施工
- 1987年
- エレベーター
- 2基(11人乗)
- 天井の高さ
- 2,440mm
- 空調
- 個別空調
- トイレ
- 男女別トイレ
- 床仕様
- OAフロア(H=40mm)
- 賃料
- ご相談
- 共益費
- 賃料に含む
- 預託金
- 賃料の3ヶ月分
- 契約期間
- 2年
- 引き渡し時期
- 即日
- その他
- 更新料:無/ 償却:無/ 礼金:無/ 契約形態:普通賃貸借契約/ その他:契約の際には、貸主指定の保証会社と保証委託契約を締結していただきます。※与信状況によって預託金額が変動する場合がございます。/
現在オンライン内覧が可能です
オンライン内覧について詳しくはこちら
CHECK IT!
この物件についてもっと詳しく
そのまんまオフィス会員
3つのメリット
-

物件の
詳細情報の公開 -

新着物件を
お知らせ -

未公開物件を
ご紹介


















