
当物件は1996年築・新耐震基準対応の地上8階建てオフィスビルで、2階は約39坪のワンフロア専有区画。内装付きで初期費用を抑えられ、個別空調・OAフロア・光ファイバー完備と、快適な業務環境が整っています。機械警備や男女別トイレ、ウォシュレットなど設備も充実されており、更に24時間利用可能で、スタートアップから中堅企業まで幅広く対応可能です。周辺には飲食店やコンビニも多く、利便性も抜群!落ち着いた環境でありながら都心へのアクセスも良好なこの物件は、働きやすさとコストパフォーマンスを両立した理想的なオフィス空間です!ぜひ一度内見にお越しくださいませ。
※掲載されている参考写真は他フロアのものになります。
※お引渡し状態は現況を優先させていただきます。
OVERVIEW
- 物件No.
- 2-3636
- 募集期間
- ご成約まで
- 所在地
- 品川区西五反田
- 最寄駅
-
東急目黒線
不動前駅 徒歩5分
JR山手線
五反田駅 徒歩14分
東京都交通局浅草線
五反田駅 徒歩14分
- 面積
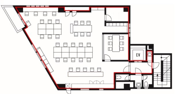
- 39.45坪 / 130.44㎡
- 会議室
- 6名掛け会議室×1
- 推奨人数
- 20~30人
- 構造
- 鉄骨造
- 規模
- 8階建
- 施工
- 1996年
- エレベーター
- 1基
- 天井の高さ
- ー
- 空調
- 個別空調
- トイレ
- 共用 男女別 洋式
- 床使用
- OAフロア
- 賃料
- 907,350円
- 共益費
- 無
- 預託金
- 無
- 契約期間
- 2年
- 引き渡し時期
- 2025年12月下旬予定
- その他
- 更新料:無/ 償却:無/ 礼金:無/ 契約形態:普通賃貸借契約/ その他:契約の際には、貸主指定の保証会社と保証委託契約を締結していただきます。※与信状況によって預託をお願いする場合がございます。/
現在オンライン内覧が可能です
オンライン内覧について詳しくはこちら
CHECK IT!
この物件についてもっと詳しく
そのまんまオフィス会員
3つのメリット
-

物件の
詳細情報の公開 -

新着物件を
お知らせ -

未公開物件を
ご紹介















