
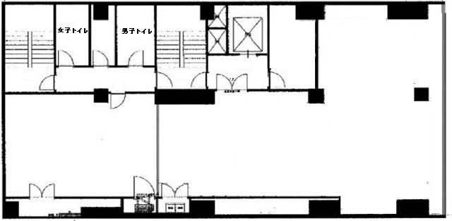
都営新宿線「馬喰横山駅」、都営浅草線「東日本橋駅」から徒歩約1分という好立地にある当ビルは、80.01坪の広さを誇る居抜きオフィスです。 外観は茶色の窓枠とレンガ調のエントランスが特徴で、落ち着いた雰囲気があり、来客された方にも好印象を与えるデザインになっています。L字型のレイアウトに加え、可動式のパーテーションが設置されており、室内を二つに仕切ることが可能です。これにより、執務スペースのゾーニングに柔軟性が生まれ、企業の多様なニーズに対応できます。また、窓が大きく採光性に優れており、明るく快適なビルです。 周辺にはコンビニ、銀行、飲食店が揃っており、ビジネスに必要な環境が整っています。都心でありながら落ち着いた雰囲気の中で、快適なオフィスライフを実現できるこの物件は、企業の拠点として最適でございます。ぜひ一度ご内見くださいませ!
※掲載内容とお引渡し状態が異なる場合は現況を優先させていただきます。
OVERVIEW
- 物件No.
- 2-3643
- 募集期間
- ご相談
- 所在地
- 中央区日本橋横山町
- 最寄駅
-
東京都交通局新宿線
馬喰横山駅 徒歩1分
東京都交通局浅草線
東日本橋駅 徒歩1分
JR総武線快速
馬喰町駅 徒歩3分
- 面積
- 80.01坪 / 264.5㎡
- 会議室
- 6名掛け会議室×1
- 推奨人数
- 30人~50人
- 構造
- 鉄筋コンクリート造
- 規模
- 地下1階地上6階建
- 施工
- 1965年
- エレベーター
- 1基(9人乗)
- 天井の高さ
- ―
- 空調
- 個別空調
- トイレ
- 専用 男女共用 洋式
- 床使用
- ―
- 賃料
- 800,000円
- 共益費
- 80,000円
- 預託金
- 賃料の3ヶ月分
- 契約期間
- ―
- 引き渡し時期
- 即日
- その他
- 再契約料:無/ 償却:無/ 礼金:賃料の1ヶ月分/ 契約形態:定期建物賃貸借契約/ 契約期間:2029年9月末日までの定期建物賃貸借契約となります。/
360°CAMERA
現在オンライン内覧が可能です
オンライン内覧について詳しくはこちら
CHECK IT!
この物件についてもっと詳しく
そのまんまオフィス会員
3つのメリット
-

物件の
詳細情報の公開 -

新着物件を
お知らせ -

未公開物件を
ご紹介
おすすめ物件
-
CLOSE
【No.2-3338 THE GATE 小伝馬町/仲介手数料不要】日本橋エリア!約40坪セットアップオフィス物件!
中央区日本橋大伝馬町
39.47坪(130.49㎡)
-
CAN RENT
【No.2-3201 Biz Feel 茅場町/仲介手数料不要・原状回復不要】オープンラウンジ設置のセットアップオフィス・フル什器付きでシチュエーションによって使い分けが可能!
中央区日本橋小網町
28.54坪(94.35㎡)
-
CLOSE
【No.2-3391 THE GATE 小伝馬町/仲介手数料不要】1階区画!コンパクトながら機能性の高いオフィス!
中央区日本橋大伝馬町
35.48坪(117.29㎡)









