
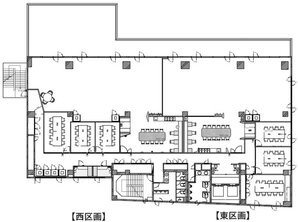
千代田区と新宿区に跨る【飯田橋エリア】に100坪を超えるデザイナーズセットアップオフィスが誕生しました。JR中央・総武線各駅停車・東京メトロ南北線・有楽町線・東西線・都営大江戸線と、複数路線利用可能な【飯田橋駅】が最寄り駅となり、従業員様、来客者様にとっても便利な立地です。2025年10月貸室内リニューアル工事が完了。貸室内には受付・執務室・会議室・テレカンブース(個室集中ブース)・ラウンジスペース・打合せスペースを設け、自由度高く働ける空間です。執務室を除きオフィス家具も設置した状態でお引渡しとなります。セットアップ物件のため、内装工事期間を圧縮できるためスピード感をもって業務を開始できます。またデザイン性の高い物件はリクルートにも強く、新しい仲間との出会いのオフィスとなるでしょう。是非一度ご内見ください!
※掲載内容とお引渡し状態が異なる場合は現況を優先させていただきます。
<リニューアル情報>
2025年10月 ラウンジ・受付スペース・会議室・個室ブース 設置完了
2026年2月 エントランス リニューアル完了予定
photographer:星野 佑
OVERVIEW
- 物件No.
- 2-3669
- 募集期間
- ご成約まで
- 所在地
- 新宿区新小川町
- 最寄駅
-
JR中央線・総武線各駅停車
飯田橋駅 徒歩10分
東京メトロ有楽町線
飯田橋駅 徒歩7分
東京都交通局大江戸線
飯田橋駅 徒歩7分
- 面積
- 104.27坪 / 344.72㎡
- 会議室
- 10名掛け会議室×1
8名掛け会議室×2
- 推奨人数
- 40~45人
- 構造
- 鉄筋コンクリート造
- 規模
- 地下2階付4階建
- 施工
- 1991年
- エレベーター
- 2基(11人乗)
- 天井の高さ
- ―
- 空調
- 個別空調
- トイレ
- 共用 男女別 洋式
- 床仕様
- ―
- 賃料
- 2,606,750円
- 共益費
- 賃料に含む
- 預託金
- 賃料の8ヶ月分
- 契約期間
- 2年
- 引き渡し時期
- 即日
- その他
- 更新料:無/ 償却:無/ 礼金:無/ 契約形態:普通賃貸借契約/ その他:貸主指定の清掃会社と貸室内の清掃契約を締結していただきます。/契約の際には、SFビルサポート株式会社と保証委託契約を締結していただきます。※与信状況によって預託金額が変動する場合がございます。/
現在オンライン内覧が可能です
オンライン内覧について詳しくはこちら
CHECK IT!
この物件についてもっと詳しく
そのまんまオフィス会員
3つのメリット
-

物件の
詳細情報の公開 -

新着物件を
お知らせ -

未公開物件を
ご紹介


















