
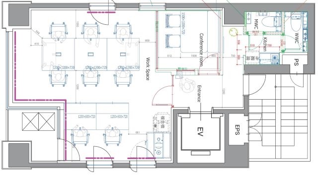
再開発が進むターミナル駅、JR山手線・京浜東北線「浜松町駅」から徒歩3分の好立地に、約14坪のコンパクトなセットアップオフィスが登場しました。貸室内には受付、4名用会議室、テレカンブース1基、男女別トイレを完備。8名用の執務席に加えビル側でWi-Fiも設置しておりますので、入居後スピーディに稼働を開始することが可能となっております!さらに第一京浜沿いに面し、窓からの採光により明るく開放感のある空間となっております。羽田空港からはモノレールで浜松町敵まで直通、成田空港からは都営浅草線で大門駅まで直通と、空港アクセスが優れているのも魅力の一つですので、外資系企業や地方本社の東京支社設立にも最適な立地です!港区アドレスにこだわりのある企業様にもおすすめとなっておりますので、ぜひ一度ご内見ください!
※掲載画像はイメージCGとなります。リニューアル工事に伴い、工事内容や掲載内容に変更が生じる場合がございます。お引渡し状態が異なる場合は現況を優先させていただきます。
OVERVIEW
- 物件No.
- 2-3712
- 募集期間
- ご成約まで
- 所在地
- 港区浜松町
- 最寄駅
-
JR山手線
浜松町駅 徒歩4分
東京都交通局浅草線
大門駅 徒歩5分
東京都交通局三田線
芝公園駅 徒歩6分
- 面積
- 14.64坪 / 48.4㎡
- 会議室
- 4名掛け会議室×1
- 推奨人数
- 6~8人
- 構造
- 鉄骨鉄筋コンクリート造
- 規模
- 10階建
- 施工
- 1991年
- エレベーター
- 1基
- 天井の高さ
- 調査中
- 空調
- 個別空調
- トイレ
- 専用 男女別 洋式
- 床使用
- ―
- 賃料
- 468,480円
- 共益費
- 賃料に含む
- 預託金
- 無
- 契約期間
- 2年
- 引き渡し時期
- 2025年12月中旬予定
- その他
- 更新料:無/ 償却:無/ 礼金:無/ 契約形態:普通賃貸借契約/ その他:契約開始より12ヶ月間解約不可(12ヶ月間以内解約の場合、違約金が発生いたします)/原状回復義務なし(現状変更した場合や破損等を除く)/クリーニング費用をご負担いただきます(入居時)/Wi-Fiパスワード変更費用をご負担いただきます(入居時)/貸主指定の清掃会社と貸室内の清掃契約を締結していただきます。/契約の際には、SFビルサポート株式会社会社と保証委託契約を締結していただきます。※与信状況によって預託をお願いする場合がございます。/
現在オンライン内覧が可能です
オンライン内覧について詳しくはこちら
CHECK IT!
この物件についてもっと詳しく
そのまんまオフィス会員
3つのメリット
-

物件の
詳細情報の公開 -

新着物件を
お知らせ -

未公開物件を
ご紹介











