
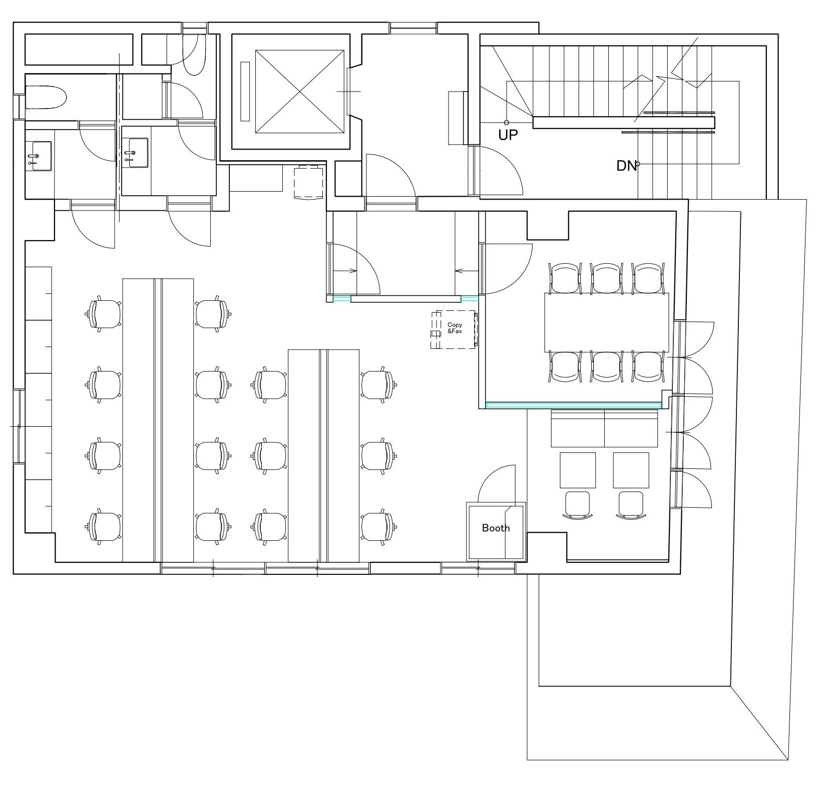
最上階に位置する9階区画で、天窓から自然光が差し込む、開放感と静けさを兼ね備えたフルセットアップオフィスです。6名用会議室・テレカンブースを完備し、敷金ゼロの相談可能・什器付きで初期費用を抑えながら、即入居・即業務開始が可能。天窓のある空間は、集中力や創造性を高める効果が期待でき、特にクリエイティブ業種や少人数精鋭のチームに適した環境です。個別空調・OAフロア・男女別トイレなどの基本設備も整っており、快適な執務環境を提供。さらに、2026年の大規模リニューアルにより、空間価値のさらなる向上が見込まれる注目の区画です。是非ご検討くださいませ。
※掲載画像はイメージCGとなり、リニューアル内容に変更が生じる場合がございます。掲載内容とお引渡し状態が異なる場合は現況を優先させていただきます。
OVERVIEW
- 物件No.
- 2-3717
- 募集期間
- ご成約まで
- 所在地
- 中央区日本橋富沢町
- 最寄駅
-
東京メトロ日比谷線
人形町駅 徒歩5分
東京都交通局新宿線
馬喰横山駅 徒歩5分
東京都交通局浅草線
東日本橋駅 徒歩5分
- 面積
- 26.26坪 / 86.8㎡
- 会議室
- 6名掛け会議室×1
- 推奨人数
- 10~20人
- 構造
- 鉄骨鉄筋コンクリート造
- 規模
- 9階建
- 施工
- 1986年
- エレベーター
- 1基(11人乗)
- 天井の高さ
- ー
- 空調
- 個別空調
- トイレ
- 専用 男女別 洋式
- 床使用
- OAフロア
- 賃料
- 630,240円
- 共益費
- 賃料に含む
- 預託金
- ご相談
- 契約期間
- 2年
- 引き渡し時期
- 2026年1月上旬予定
- その他
- 更新料:無/ 償却:無/ 礼金:無/ 契約形態:普通賃貸借契約/ その他:契約の際には、貸主指定の保証会社と保証委託契約を締結していただきます。与信状況に応じて預託金無しの相談が可能。/
現在オンライン内覧が可能です
オンライン内覧について詳しくはこちら
CHECK IT!
この物件についてもっと詳しく
そのまんまオフィス会員
3つのメリット
-

物件の
詳細情報の公開 -

新着物件を
お知らせ -

未公開物件を
ご紹介











