
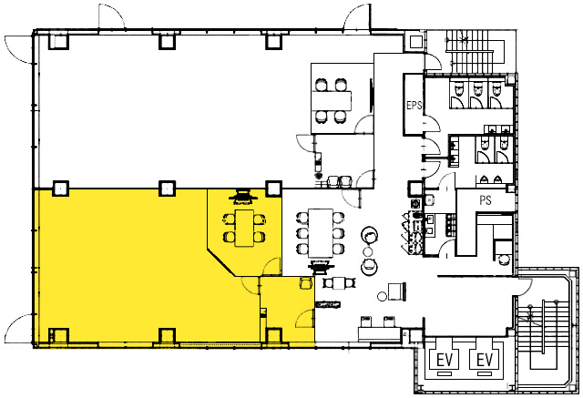
東京メトロ半蔵門線【半蔵門駅】徒歩1分、視認性の良い通り沿いにセットアップオフィスが登場いたしました。1フロアを2区画に分割し、共用部には、会議室・テレカンブース・パントリー・休憩スペースを設置し、入居テナント様が自由に利用できるスペースを設けます。貸室内は会議室やテレカンブース、ファミレスブースに什器が設置され、執務室内はテナント様にて、お好きなレイアウトで什器を設置することが出来ます。現時点ではまだ間仕切り等を設置しておらず、ご契約後からの着工となりますので、ご契約から約2ヶ月後の入居が可能です。現地には間仕切りを立てる予定の部分に印を付けておりますので、内覧時にもご入居後のイメージがしやすくなっております。ぜひ一度ご内覧ください!
※掲載中の図面はイメージレイアウトとなります。現在リニューアル前の為、変更となる場合がございます。予めご了承ください。
OVERVIEW
- 物件No.
- 2-3719
- 募集期間
- ご成約まで
- 所在地
- 千代田区麹町
- 最寄駅
-
東京メトロ半蔵門線
半蔵門駅 徒歩1分
東京メトロ有楽町線
麹町駅 徒歩8分
東京都交通局新宿線
市ヶ谷駅】徒歩12分
- 面積
- 45.93坪 / 151.83㎡
- 会議室
- 4名掛け会議室×1
- 推奨人数
- 12~14人
- 構造
- 鉄骨鉄筋コンクリート造
- 規模
- 地下1階付8階建
- 施工
- 1996年
- エレベーター
- 2基
- 天井の高さ
- ―
- 空調
- 個別空調
- トイレ
- 共用 男女別 洋式
- 床使用
- OAフロア
- 賃料
- 1,377,900円
- 共益費
- 賃料に含む
- 預託金
- 賃料の6ヶ月分
- 契約期間
- 3年
- 引き渡し時期
- ご相談
- その他
- 再契約料:無/ 償却:無/ 礼金:無/ 契約形態:定期建物賃貸借契約/ その他:貸主指定の保証会社と保証委託契約を締結していただきます。/
現在オンライン内覧が可能です
オンライン内覧について詳しくはこちら
CHECK IT!
この物件についてもっと詳しく
そのまんまオフィス会員
3つのメリット
-

物件の
詳細情報の公開 -

新着物件を
お知らせ -

未公開物件を
ご紹介












