
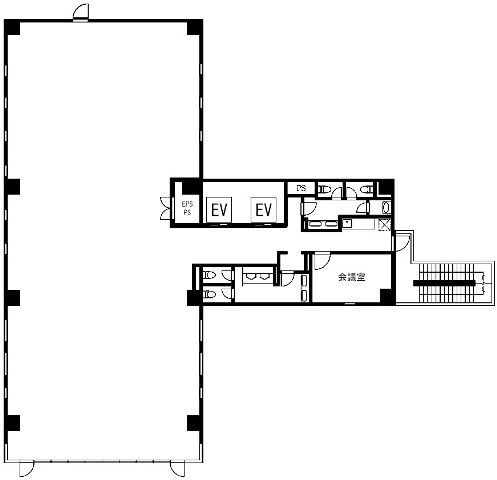
ビジネスの可能性を最大化するハイグレードオフィスが【小伝馬町駅】徒歩1分の立地に誕生しました!執務室空間は2,700mmのゆとりある高さが確保されたシステム天井で、開放感と自由度の高いレイアウトを実現。EVホールで隔てられた独立性の高い会議室は、6名利用が推奨の広さです。5駅4路線にアクセス可能なロケーションは、ビジネスの機動力を最大化。周辺には飲食店も集積し、働く人々の利便性も良好です。企業のブランド価値を高める洗練されたオフィスで、新たなステージを始めませんか。
※掲載内容と現況が異なる場合は現況を優先します。
OVERVIEW
- 物件No.
- 2-3766
- 募集期間
- ご成約まで
- 所在地
- 中央区日本橋小伝馬町
- 最寄駅
-
東京メトロ日比谷線
小伝馬町駅 徒歩1分
JR総武快速線
馬喰町駅 徒歩5分
東京都交通局新宿線
馬喰横山駅 徒歩7分
- 面積
- 92.58坪 / 306.07㎡
- 会議室
- 6名掛け会議室×1
- 推奨人数
- 40~55人
- 構造
- 鉄骨造
- 規模
- 8階建
- 施工
- 2026年
- エレベーター
- 2基
- 天井の高さ
- 2,700mm(会議室:2,500mm)
- 空調
- 個別空調
- トイレ
- 専用 男女別 洋式
- 床仕様
- OAフロア(H=40mm)
- 賃料
- ご相談
- 共益費
- 賃料に含む
- 預託金
- 賃料の8ヶ月分
- 契約期間
- 2年
- 引き渡し時期
- 2026年5月1日予定
- その他
- 更新料:無/ 償却:無/ 礼金:無/ 契約形態:普通賃貸借契約/
現在オンライン内覧が可能です
オンライン内覧について詳しくはこちら
CHECK IT!
この物件についてもっと詳しく
そのまんまオフィス会員
3つのメリット
-

物件の
詳細情報の公開 -

新着物件を
お知らせ -

未公開物件を
ご紹介










