
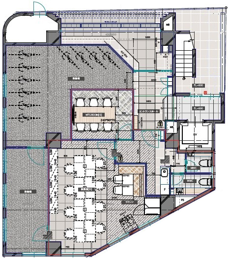
コンパクトオフィスをお探しの方必見です!JR山手線【大塚駅】徒歩5分、東京メトロ丸ノ内線【新大塚駅】徒歩4分の立地でフル什器付きセットアップオフィスが募集となりました。室内は会議室1室(6名用×1室)、テレカンブースが1つ、執務室は8名を想定したデスクも予め設置、休憩スペースとして利用可能な区画も設置してお引渡しとなります。また、1階テナント様専用の駐輪場スペースも設置予定。アクティブに動く社員の方が多い企業様にもおすすめです。周辺はコンビニやスーパー、飲食店が点在しており、働きやすい環境です。ビル側でWi-fiも設置しておりますので、入居時の手間を減らし、内装工事等のイニシャルコストが大幅に削減可能です!山手線・東京メトロ丸ノ内線沿線や会議室等の内装付きオフィス、フル什器付きのセットアップオフィスをお探しの方、是非ご検討ください!
※掲載画像はイメージパースとなります。現在、工事中となりますため、リニューアル内容、レイアウト等に変更が生じる場合がございます。予めご了承ください。掲載内容とお引渡し内容が異なる場合は現況を優先させていただきます。
OVERVIEW
- 物件No.
- 2-3788
- 募集期間
- ご成約まで
- 所在地
- 豊島区南大塚
- 最寄駅
-
東京メトロ丸ノ内線
新大塚駅 徒歩4分
JR山手線
大塚駅 徒歩5分
東京さくらトラム(都営荒川線)
大塚駅前駅 徒歩5分
- 面積
- 16.66坪 / 55.09㎡
- 会議室
- 6名掛け会議室×1
- 推奨人数
- 5~8人
- 構造
- 鉄骨鉄筋コンクリート造
- 規模
- 7階建
- 施工
- 1988年
- エレベーター
- 1基(6人乗)
- 天井の高さ
- ―
- 空調
- 個別空調
- トイレ
- 専用 男女別 洋式
- 床仕様
- ―
- 賃料
- ご相談
- 共益費
- 賃料に含む
- 預託金
- 無
- 契約期間
- 2年
- 引き渡し時期
- ご相談
- その他
- 更新料:無/ 償却:無/ 礼金:無/ 契約形態:普通賃貸借契約/ その他:契約開始より12ヶ月間解約不可(12ヶ月間以内解約の場合、違約金が発生いたします)/原状回復義務なし(現状変更した場合や破損等を除く)/クリーニング費用をご負担いただきます(契約時)/貸主指定の清掃会社と貸室内の清掃契約を締結していただきます。/Wi-Fiパスワード変更費用が発生します(契約時)/廃棄物処理代が発生します(廃棄量に応じて別途追加費用をご負担いただきます。)/契約の際には、SFビルサポート株式会社会社と保証委託契約を締結していただきます。※与信状況によって預託をお願いする場合がございます。/
現在オンライン内覧が可能です
オンライン内覧について詳しくはこちら
CHECK IT!
この物件についてもっと詳しく
そのまんまオフィス会員
3つのメリット
-

物件の
詳細情報の公開 -

新着物件を
お知らせ -

未公開物件を
ご紹介













