
日本橋エリアの人形町駅・小伝馬町駅・東日本橋駅の中心地に会議室、オフィス家具付きのセットアップオフィスが募集中です。すでに内装と什器等が設置されているため、オフィス開設の準備、お引っ越し準備の手間を軽減することが可能。フレキシブルな移動が叶うセットアップオフィスです。ご内覧も可能ですのでお気軽にお問い合わせください。
※掲載写真とお引渡し状態が異なる場合は現況を優先させていただきます。
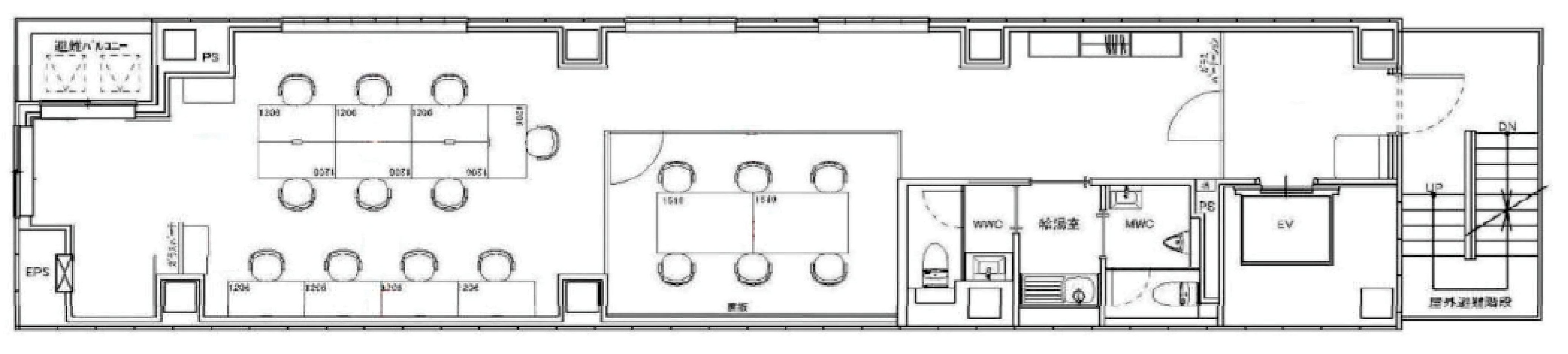
OVERVIEW
- 物件No.
- 2-3853
- 募集期間
- ご成約まで
- 所在地
- 中央区日本橋富沢町
- 最寄駅
-
東京都交通局新宿線
馬喰横山駅 徒歩4分
東京都交通局浅草線
東日本橋駅 徒歩5分
東京メトロ日比谷線
小伝馬町駅 徒歩6分
- 面積
- 30.06坪 / 99.39㎡
- 会議室
- 6名掛け会議室×1
- 推奨人数
- 10~11人
- 構造
- 鉄骨造
- 規模
- 10階建
- 施工
- 2021年
- エレベーター
- 1基(9人乗)
- 天井の高さ
- 最大2,830mm
- 空調
- 個別空調(冷房・暖房の切替はビル側にて実施)
- トイレ
- 専用 男女別 洋式
- 床仕様
- OAフロア(H=50mm)
- 賃料
- ご相談
- 共益費
- 賃料に含む
- 預託金
- 賃料の6ヶ月分
- 契約期間
- 3年
- 引き渡し時期
- 2026年4月上旬予定
- その他
- 更新料:無/ 償却:無/ 礼金:無/ 契約形態:普通賃貸借契約/ その他:契約の際には、貸主指定の保証会社をご利用いただけます。/
現在オンライン内覧が可能です
オンライン内覧について詳しくはこちら
CHECK IT!
この物件についてもっと詳しく
そのまんまオフィス会員
3つのメリット
-

物件の
詳細情報の公開 -

新着物件を
お知らせ -

未公開物件を
ご紹介












