
【新宿駅】徒歩3分、さらにA1出口直結という利便性の高いアクセスを誇る新宿エリアの高層オフィスビル。JR各線に加え、都営大江戸線・新宿線、京王新線も利用できるため、通勤のしやすさはもちろん、来客や外出が多い企業様にも非常に使いやすい立地です。雨の日でもほぼ濡れずにアクセスできる点は、日々の快適さに直結します。周辺は新宿駅南口エリアならではの利便性の高さが魅力で、飲食店やカフェ、銀行、商業施設が充実。ランチや打ち合わせ、アフターワークまで幅広く対応でき、働く人にとってストレスの少ない環境が整っています。一方で、ビル周辺は比較的落ち着いた雰囲気があり、業務に集中しやすい点もポイントです。募集区画はフルセットアップオフィス仕様となっており、執務スペースや会議室、ラウンジなどがあらかじめ整った状態でご利用いただけます。初期コストや準備の手間を抑えつつ、すぐに業務をスタートしたい企業様におすすめの、立地・機能性ともに優れたハイグレードオフィスです。
※掲載内容とお引渡し状態が異なる場合は現況を優先させていただきます。
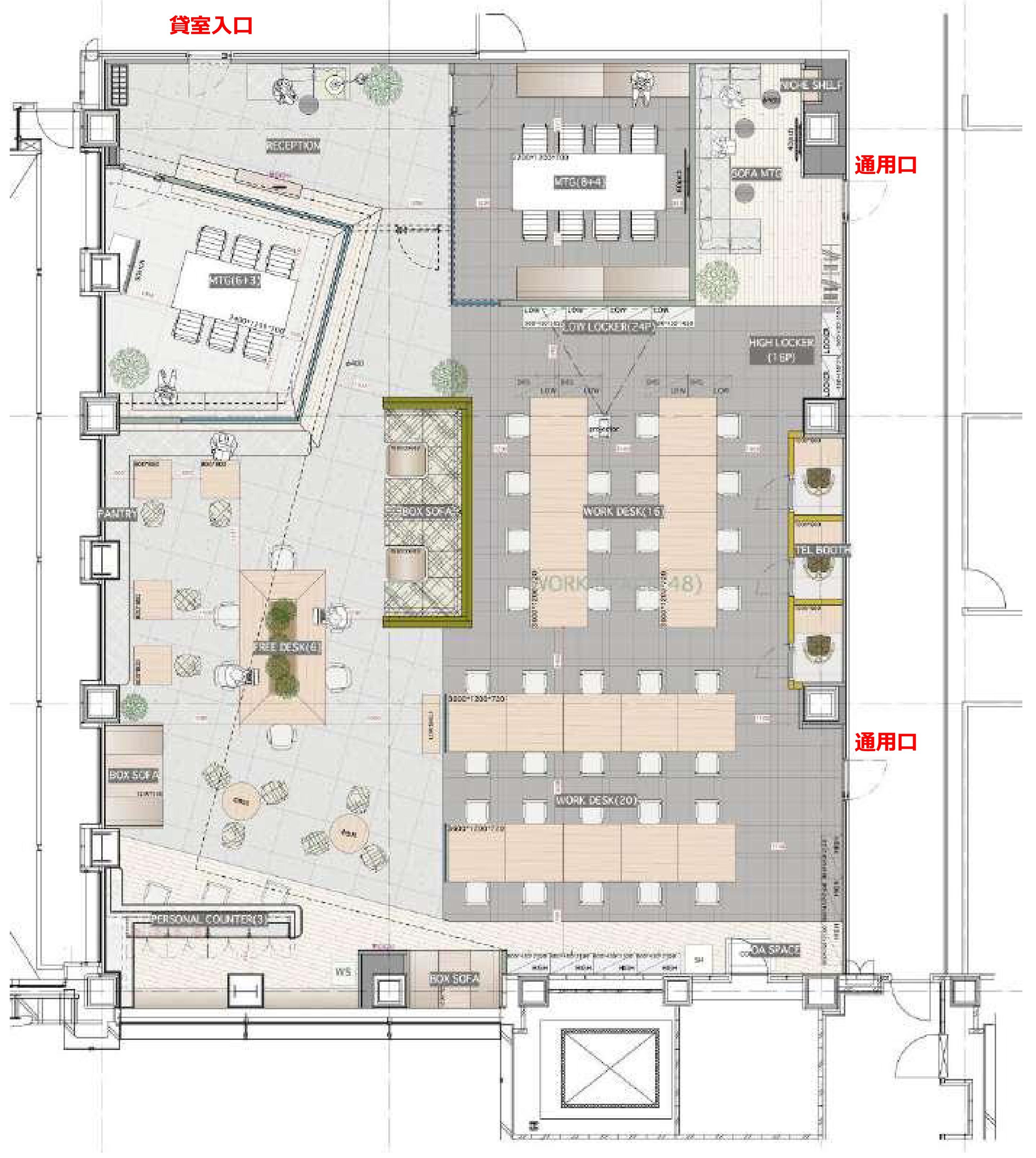
OVERVIEW
- 物件No.
- 2-3862
- 募集期間
- ご成約まで
- 所在地
- 渋谷区代々木
- 最寄駅
-
東京都交通局大江戸線
新宿駅 徒歩1分
東京都交通局新宿線
新宿駅 徒歩4分
JR山手線
新宿駅 徒歩5分
- 面積
- 99.53坪 / 329.04㎡
- 会議室
- 8名掛け会議室×1
6名掛け会議室×1
- 推奨人数
- 36~40人
- 構造
- 鉄骨造、一部鉄骨鉄筋コンクリート造
- 規模
- 地下3階付34階建
- 施工
- 1995年
- エレベーター
- 22基
- 天井の高さ
- 2,670mm
- 空調
- セントラル
- トイレ
- 共用 男女別 洋式
- 床仕様
- OAフロア(H=100mm)
- 賃料
- ご相談
- 共益費
- 646,945円
- 預託金
- 賃料の12ヶ月分
- 契約期間
- ―
- 引き渡し時期
- 2026年5月17日予定
- その他
- 更新料:無/ 償却:無/ 礼金:無/ 契約形態:定期建物賃貸借契約/ 契約期間:年相談/
現在オンライン内覧が可能です
オンライン内覧について詳しくはこちら
CHECK IT!
この物件についてもっと詳しく
そのまんまオフィス会員
3つのメリット
-

物件の
詳細情報の公開 -

新着物件を
お知らせ -

未公開物件を
ご紹介
















