
JR中央・総武線「水道橋」駅徒歩1分、都営三田線も利用可能な好立地に、築浅のセットアップオフィスが登場します。
2023年1月竣工の鉄筋コンクリート造ビルで、アクセス性を重視される企業様におすすめの物件です。
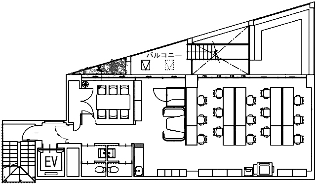
貸室内は内装付きセットアップ仕様となっており、OAフロアを完備。レイアウト工事の手間や初期コストを抑え、スムーズなご入居が可能です。
また、室内男女別トイレに加え、専用テラス付きという付加価値の高い仕様も魅力です。
現況入居中ですが、2026年7月上旬より入居可能予定となっております。
立地・築年・仕様のバランスが取れた、水道橋エリアのセットアップオフィスです。
※掲載内容とお引渡し状態が異なる場合は、現況を優先させていただきます。
OVERVIEW
- 物件No.
- 2-3879
- 募集期間
- ご成約まで
- 所在地
- 千代田区神田三崎町
- 最寄駅
-
JR中央線・総武線各駅停車
水道橋駅 徒歩2分
東京都交通局三田線
水道橋駅 徒歩4分
東京メトロ東西線
飯田橋駅 徒歩10分
- 面積
- 30.2坪 / 99.83㎡
- 会議室
- 6名掛け会議室×1
- 推奨人数
- 10〜15人
- 構造
- 鉄筋コンクリート造
- 規模
- 6階建
- 施工
- 2023年
- エレベーター
- 1基
- 天井の高さ
- ―
- 空調
- 個別空調
- トイレ
- 専用 男女別 洋式
- 床仕様
- OAフロア
- 賃料
- 785,200円
- 共益費
- 賃料に含む
- 預託金
- 賃料の3ヶ月分
- 契約期間
- 2年
- 引き渡し時期
- 2026年7月上旬予定
- その他
- 更新料:新賃料の1ヶ月分/ 償却:無/ 礼金:無/ 契約形態:普通賃貸借契約/ その他:貸主指定の保証会社と保証委託契約を締結していただきます。/共用部使用料が別途発生します。/
FEATURES
現在オンライン内覧が可能です
オンライン内覧について詳しくはこちら
CHECK IT!
この物件についてもっと詳しく
そのまんまオフィス会員
3つのメリット
-

物件の
詳細情報の公開 -

新着物件を
お知らせ -

未公開物件を
ご紹介











