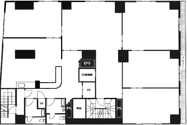
新宿駅・南新宿駅・代々木駅の3駅4路線利用可能な交通アクセスにとても便利な立地!!都心へのアクセスに富んでおり、周辺にはカフェや飲食店、銀行、郵便局などビジネスに必要な施設が充実しています。落ち着いた街並みと利便性を兼ね備えた代々木エリアは、来客にも好印象を与える環境です。今回募集する区画は、会議室等に利用できる5つの個室に分けられた間仕切り、受付ブース、男女別トイレがそのまま残ったレイアウト。居抜き利用であれば、初期工事やレイアウト設計の手間が不要で、初期費用を大幅に抑えながら、すぐに業務をスタートできるのが最大の魅力です。
間仕切りによる個室5部屋完備:打ち合わせやオンラインミーティングに最適
また、一部間仕切りを外して執務室としてもレイアウトが可能。
受付ブースあり:来客対応もスマートに
用途:サービス店舗としてのご利用も検討可能!
詳細や内見のご予約は、ぜひお気軽にお問い合わせください。
※掲載内容とお引渡し状態が異なる場合は現況を優先させていただきます。
OVERVIEW
- 物件No.
- 2-3883
- 募集期間
- ご成約まで
- 所在地
- 渋谷区代々木
- 最寄駅
-
東京都交通局大江戸線
代々木駅徒歩2分
JR山手線
代々木駅 徒歩2分
JR山手線
新宿駅 徒歩9分
- 面積
- 87.65坪 / 289.76㎡
- 会議室
- ―
- 推奨人数
- 40~45人
- 構造
- 鉄筋コンクリート造
- 規模
- 地下1階付13階建
- 施工
- 1982年
- エレベーター
- 1基
- 天井の高さ
- 2,600mm
- 空調
- 個別空調
- トイレ
- 専用 男女別 洋式
- 床仕様
- 塩ビシート
- 賃料
- 1,600,000円
- 共益費
- 200,000円
- 預託金
- 賃料の10ヶ月分
- 契約期間
- 2年
- 引き渡し時期
- 即日
- その他
- 更新料:新賃料の1ヶ月分/ 償却:賃料の2ヶ月分/ 礼金:賃料の1ヶ月分/ 契約形態:普通賃貸借契約/ その他:契約の際には貸主指定の保証会社と保証委託契約を締結していただきます/鍵交換費用、契約事務手数料、更新事務手数料が別途発生いたします。/短期解約(1年未満解約)の場合、違約金が発生します。/
現在オンライン内覧が可能です
オンライン内覧について詳しくはこちら
CHECK IT!
この物件についてもっと詳しく
そのまんまオフィス会員
3つのメリット
-

物件の
詳細情報の公開 -

新着物件を
お知らせ -

未公開物件を
ご紹介
















