
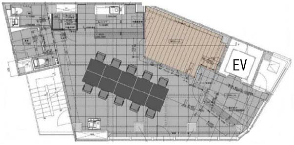
JR・東京メトロの複数路線が利用でき、【池袋駅】まで徒歩圏の利便性に優れたセットアップオフィスです!26.93坪の使いやすい整形区画で、ワンフロア独立のためプライバシー性も高く、各種業種に対応しやすいレイアウトが可能です。エレベーター不停止機能を備え、セキュリティ面も安心。周辺には飲食店やコンビニが多く、日々の業務を快適にサポートする環境が整っています。企業の新拠点や増床にも最適な好立地オフィスです。ぜひ一度ご内見ください♪
※掲載写真と現況のお引渡し状態が異なる場合は、現況を優先させていただきます。
OVERVIEW
- 物件No.
- 2-3889
- 募集期間
- ご成約まで
- 所在地
- 豊島区東池袋
- 最寄駅
-
JR山手線
池袋駅 徒歩7分
東京メトロ丸ノ内線
池袋駅 徒歩7分
東京メトロ有楽町線
池袋駅 徒歩7分
- 面積
- 26.93坪 / 89.03㎡
- 会議室
- 6名掛け会議室×1
- 推奨人数
- 8~10人
- 構造
- 鉄骨造
- 規模
- 10階建
- 施工
- 1986年
- エレベーター
- 1基(9人乗)
- 天井の高さ
- ―
- 空調
- 個別空調
- トイレ
- 専用 男女別 洋式
- 床仕様
- ―
- 賃料
- 700,180円
- 共益費
- 無
- 預託金
- 賃料の6ヶ月分
- 契約期間
- 2年
- 引き渡し時期
- 2026年3月中旬予定
- その他
- 更新料:新賃料の1ヶ月分/ 償却:無/ 礼金:無/ 契約形態:普通賃貸借契約/ その他:契約の際には、貸主指定の保証会社と保証委託契約を締結していただきます。/1年未満解約の場合、違約金が発生します。/
現在オンライン内覧が可能です
オンライン内覧について詳しくはこちら
CHECK IT!
この物件についてもっと詳しく
そのまんまオフィス会員
3つのメリット
-

物件の
詳細情報の公開 -

新着物件を
お知らせ -

未公開物件を
ご紹介








