
台東区エリアのセットアップオフィスのご紹介です。日比谷線【仲御徒町駅】徒歩2分、JR山手線【御徒町駅】徒歩5分、昭和通り沿いに面した立地でございます。2023年に大規模リニューアル工事を行い、ガラスウォールが目を引く視認性の良いビルでございます。貸室入り口は昭和通りより直接アクセスが可能でございます。入口には受付スペース設けられ、8名用会議室も設置済のためご来社いただいたお客様をスムーズにご案内可能でございます。また、執務スペースよりお手洗いを離した設計のため、男性・女性共に快適にご利用いただけます。さらに共用の屋上テラス(喫煙所併設)もご用意しており、業務の息抜きはもちろん、コミュニケーションの場としてのご利用も可能でございます。企業の成長を手助けする設備が整っております。ぜひ一度ご検討ください。
※掲載内容と現況が異なる場合は現況を優先させていただきます。
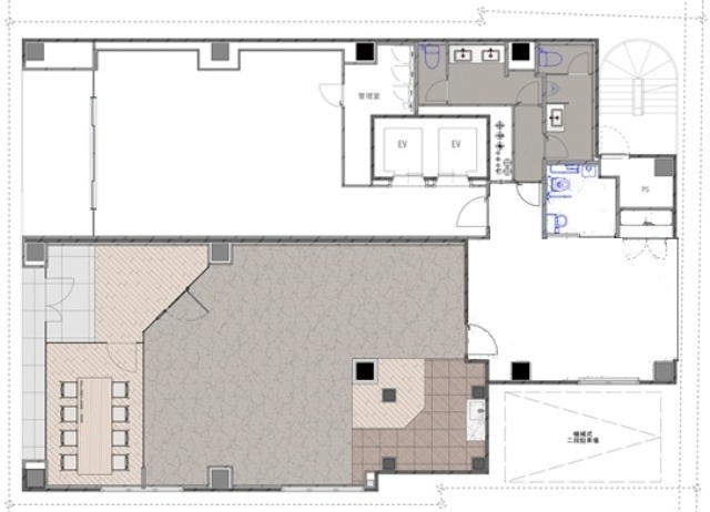
OVERVIEW
- 物件No.
- 2-3894
- 募集期間
- ご成約まで
- 所在地
- 台東区台東
- 最寄駅
-
東京メトロ日比谷線
仲御徒町駅 徒歩2分
JR山手線
御徒町駅 徒歩5分
東京メトロ銀座線
上野広小路駅 徒歩9分
- 面積
- 31.61坪 / 104.5㎡
- 会議室
- 8名掛け会議室×1
- 推奨人数
- 10~15人
- 構造
- 鉄骨造
- 規模
- 11階建
- 施工
- 1999年
- エレベーター
- 2基(6人乗)
- 天井の高さ
- ー
- 空調
- 個別空調
- トイレ
- 専用 男女別 洋式
- 床仕様
- OAフロア
- 賃料
- 853,470円
- 共益費
- 賃料に含む
- 預託金
- 賃料の4ヶ月分
- 契約期間
- 2年
- 引き渡し時期
- 2026年8月28日予定
- その他
- 更新料:無/ 償却:無/ 礼金:無/ 契約形態:普通賃貸借契約/ その他:契約の際に、SFビルサポート株式会社と保証委託契約を締結していただきます。※与信状況により、預託額が変動する場合がございます。/
現在オンライン内覧が可能です
オンライン内覧について詳しくはこちら
CHECK IT!
この物件についてもっと詳しく
そのまんまオフィス会員
3つのメリット
-

物件の
詳細情報の公開 -

新着物件を
お知らせ -

未公開物件を
ご紹介













