
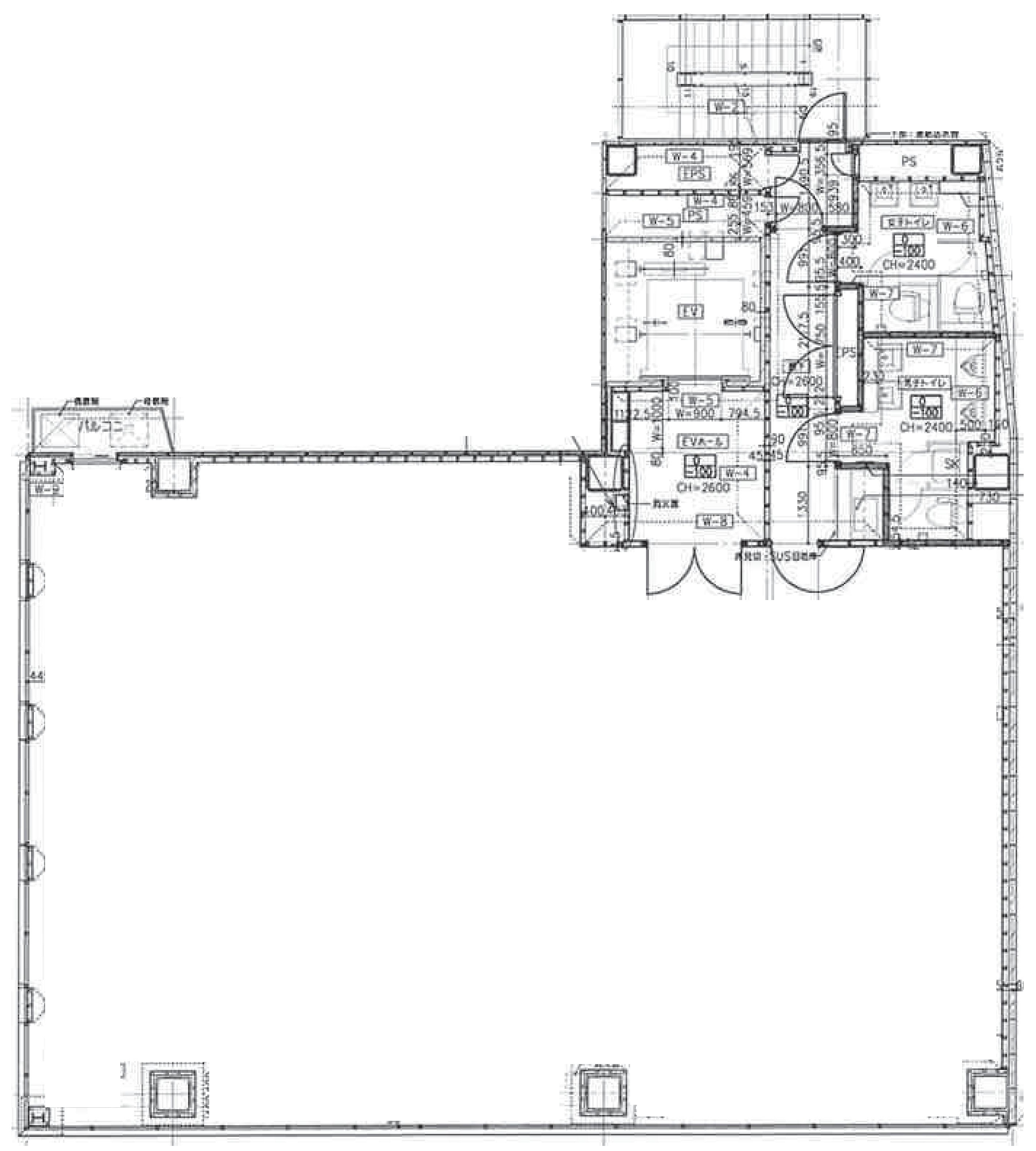
空港アクセスが良く、再開発で新たなビジネス街へと進化を続ける浜松町エリアに新たな居抜きオフィスが登場しました!室内には、受付台・会議室2室(4名用×2)が設置され、来客や会議の多い企業様におすすめです。執務室は現状6人用デスク×3島の18席が設けられており、2026年6月末契約締結までの居抜き募集期間内であれば、パーティションのみならず什器についても現テナント様と調整の上、譲渡可能です。初期コストや工事期間を抑えたい方、すぐに業務をスタートしたい方にお勧めです。ぜひ一度ご検討くださいませ。
※掲載内容と現況が異なる場合は現況を優先させていただきます。
OVERVIEW
- 物件No.
- 2-3919
- 募集期間
- 2026年6月末ご契約締結まで
- 所在地
- 港区浜松町
- 最寄駅
-
東京都交通局大江戸線
大門駅 徒歩4分
JR山手線
浜松町駅 徒歩5分
東京都交通局三田線
御成門駅 徒歩8分
- 面積
- 66.43坪 / 219.62㎡
- 会議室
- 4名掛け会議室×2
- 推奨人数
- 18~20人
- 構造
- 鉄骨造
- 規模
- 10階建
- 施工
- 2008年
- エレベーター
- 1基(15人乗)
- 天井の高さ
- 2,600mm
- 空調
- 個別空調
- トイレ
- あり 男女別 洋式
- 床仕様
- OAフロア(H=100mm)
- 賃料
- ご相談
- 共益費
- 賃料に含む
- 預託金
- ご相談
- 契約期間
- 2年
- 引き渡し時期
- ご相談
- その他
- 更新料:新賃料の1ヶ月分/ 償却:無/ 礼金:賃料の1ヶ月分/ 契約形態:普通賃貸借契約/ その他:契約の際には、貸主指定の保証会社と保証委託契約を締結していただきます。/
現在オンライン内覧が可能です
オンライン内覧について詳しくはこちら
CHECK IT!
この物件についてもっと詳しく
そのまんまオフィス会員
3つのメリット
-

物件の
詳細情報の公開 -

新着物件を
お知らせ -

未公開物件を
ご紹介









