
五反田エリアに65.23坪の会議室付セットアップオフィスが登場!五反田バレーや多様な飲食店、駅ビルの開業等、近年注目されている五反田ですが、昨今は渋谷や恵比寿へのアクセス面からオフィスニーズも高まっています。当ビルは、貸室内・エントランスのリニューアルを行っております。先進的なエントランスは、黒いモールが来館者様をスムーズに室内へ導いてくれることでしょう。また、貸室内には会議室、リラックススペース、ラウンジスペース等を設え、内装コストの大幅な削減に寄与すると同時にお客様の仕様に合わせ様々な利用方法が可能。仕事に集中でき、創造性豊かにメリハリのある仕事ができる空間です!是非一度、現物をあなたのその目でお確かめくださいませ!
【リニューアル情報】
2017年12月、エントランスリニューアル工事完了
2021年2月、貸室内リニューアル工事完了
photographer:星野 佑
OVERVIEW
- 物件No.
- 1-996
- 募集期間
- ご成約まで
- 所在地
- 品川区西五反田
- 最寄駅
-
JR山手線
五反田駅 徒歩8分
東急目黒線
不動前駅 徒歩7分
東急池上線
大崎広小路駅 徒歩7分
- 面積
- 65.23坪 / 215.64㎡
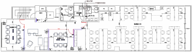
- 会議室
- 6名掛け会議室×1
8名掛け会議室×1
オープンラウンジスペース×1
- 推奨人数
- 30〜35人
- 構造
- 鉄骨鉄筋コンクリート造
- 規模
- 9階建
- 施工
- 1988年
- エレベーター
- 1基(13人乗)
- 天井の高さ
- 2,450mm
- 空調
- 個別空調
- トイレ
- 専用 男女別 洋式
- 床仕様
- OAフロア(H=50mm)
- 賃料
- ご相談
- 共益費
- 賃料に含む
- 預託金
- 賃料の6ヶ月分
- 契約期間
- 2年
- 引き渡し時期
- 即日
- その他
- 更新料:無/ 償却:無/ 礼金:無/ 契約形態:普通賃貸借契約/ その他:契約の際には、SFビルサポート株式会社と保証委託契約を締結していただきます。※与信状況によって預託金額が変動する場合がございます。/
現在オンライン内覧が可能です
オンライン内覧について詳しくはこちら
CHECK IT!
この物件についてもっと詳しく
そのまんまオフィス会員
3つのメリット
-

物件の
詳細情報の公開 -

新着物件を
お知らせ -

未公開物件を
ご紹介


















