HOME
>
エリアから探す
>
横浜エリア
>
横浜市西区・神奈川区
>
KDX横浜みなとみらいタワー (旧:三菱重工横浜ビル)
>
KDX横浜みなとみらいタワー (旧:三菱重工横浜ビル) 3階
新耐震
KDX横浜みなとみらいタワー (旧:三菱重工横浜ビル)
3階(神奈川県横浜市西区みなとみらい)
新耐震
KDX横浜みなとみらいタワー (旧:三菱重工横浜ビル)
3階(神奈川県横浜市西区みなとみらい)
- 賃料(坪単価):
- 相談(@―)
- 共益費(坪単価)
- :
- 相談 (@―)
- 預託金(保証金/敷金)
- :
- 相談(―)
- 面積
- :
- 22.06坪 (72.93m²)
- 所在地
- :
- 神奈川県横浜市西区みなとみらい3-3-1
- 最寄駅
- :
-
みなとみらい駅まで徒歩5分
桜木町駅まで徒歩10分
高島町駅まで徒歩10分
桜木町駅まで徒歩10分
馬車道駅まで徒歩11分
物件情報
所在地・アクセス
- 物件名
- KDX横浜みなとみらいタワー (旧:三菱重工横浜ビル) 3階
- 所在地
- 神奈川県横浜市西区みなとみらい3-3-1
- 最寄駅
-
横浜高速鉄道みなとみらい線 みなとみらい駅まで徒歩5分
JR根岸線 桜木町駅まで徒歩10分
横浜市営ブルーライン 高島町駅まで徒歩10分
横浜市営ブルーライン 桜木町駅まで徒歩10分
横浜高速鉄道みなとみらい線 馬車道駅まで徒歩11分
賃貸条件
- 賃料(坪単価)
- 相談(@―)
- 礼 金
- 相談
- 共益費(坪単価)
- 相談(@―)
- 面 積
- 22.06坪 (72.93m²)
- 賃料+共益費(坪単価)
- 相談 (@―)
- 償 却
- 相談
- 預託金(保証金/敷金)
- 相談(―)
- 入居可能日
- 相談
- 更新料(再契約料)
- 相談
- 契約期間
- 相談
物件概要
- 特 徴
- 構 造
- 鉄骨・鉄骨鉄筋コンクリート造/新耐震
- 物件タイプ
- 事務所
- 規 模
- 地下2階付34階建
- 取引態様
- 一般媒介
- 竣 工
- 1994年2月
- 設 備
-
E V :18基、天井高:2700㎜、床仕様:OAフロア(H=100mm)、空調:セントラル、トイレ:共用 男女別 洋式
その他:機械警備、有人警備、駐車場設備あり
- 備 考
- お問い合わせください。
物件情報更新日:2026-03-05
お気軽にお問合せください
現在募集中の区画
- 階数
- 面積
- 賃料
- 共益費
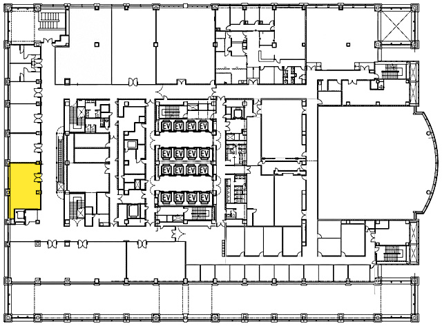
- 間取図
- HOME
- >
- エリアから探す
- >
- 横浜エリア
- >
- 横浜市西区・神奈川区
- >
- KDX横浜みなとみらいタワー (旧:三菱重工横浜ビル)
- >
- KDX横浜みなとみらいタワー (旧:三菱重工横浜ビル) 3階
