新耐震
TPR新横浜ビル
3階(神奈川県横浜市港北区新横浜)
新耐震
TPR新横浜ビル
3階(神奈川県横浜市港北区新横浜)
- 賃料(坪単価):
- 相談(@―)
- 共益費(坪単価)
- :
- 賃料に含む (@―)
- 預託金(保証金/敷金)
- :
- ―(12ヶ月)
- 面積
- :
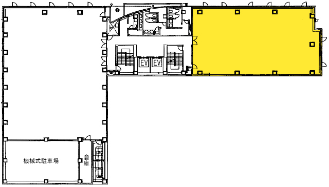
- 83.29坪 (275.34m²)
- 所在地
- :
- 神奈川県横浜市港北区新横浜2-13-13
- 最寄駅
- :
-
新横浜駅まで徒歩4分
新横浜駅まで徒歩6分
新横浜駅まで徒歩6分
新横浜駅まで徒歩6分
北新横浜駅まで徒歩15分
物件情報
所在地・アクセス
- 物件名
- TPR新横浜ビル 3階
- 所在地
- 神奈川県横浜市港北区新横浜2-13-13
- 最寄駅
-
横浜市営ブルーライン 新横浜駅まで徒歩4分
JR横浜線 新横浜駅まで徒歩6分
相鉄新横浜線 新横浜駅まで徒歩6分
東急新横浜線 新横浜駅まで徒歩6分
横浜市営ブルーライン 北新横浜駅まで徒歩15分
賃貸条件
- 賃料(坪単価)
- 相談(@―)
- 礼 金
- 無
- 共益費(坪単価)
- 賃料に含む(@―)
- 面 積
- 83.29坪 (275.34m²)
- 賃料+共益費(坪単価)
- 相談 (@―)
- 償 却
- 無
- 預託金(保証金/敷金)
- ―(12ヶ月)
- 入居可能日
- 2026年5月1日予定
- 更新料(再契約料)
- 無
- 契約期間
- 年相談
物件概要
- 特 徴
- 構 造
- 鉄骨造、一部鉄筋鉄骨コンクリート造/新耐震
- 物件タイプ
- 事務所
- 規 模
- 地下1階付8階建
- 取引態様
- 一般媒介
- 竣 工
- 1993年9月
- 設 備
-
E V :2基(15人乗)、天井高:2570㎜、床仕様:OAフロア(H=40mm)、空調:個別空調、トイレ:共用 男女別
その他:機械警備
- 備 考
-
■2018年、共用部リニューアル実施済 ■床荷重:300㎏/㎡ ■その他設備⇒喫煙室・リフレッシュコーナー ■エントランス開放時間:平日8:00~20:00、土曜8:30~18:00、日祝Close ※図面着色部分が募集区画となりますが、契約面積と相違する可能性があることを予めご了承ください。
注) 上記の価格には、別途、消費税及び地方消費税が課されます。
消費税率が変更された場合には、以後、変更後の税率が課されることとなります。
物件情報更新日:2025-12-26
お気軽にお問合せください
