新耐震
IMIビル
5階(東京都台東区上野)
新耐震
IMIビル
5階(東京都台東区上野)
- 賃料(坪単価):
- 相談(@―)
- 共益費(坪単価)
- :
- 87,220円 (@3,500円)
- 預託金(保証金/敷金)
- :
- ―(10ヶ月)
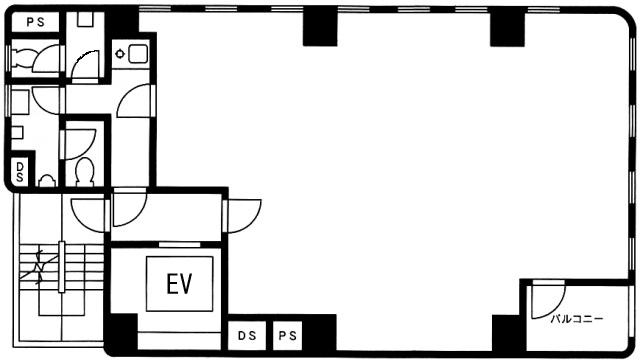
- 面積
- :
- 24.92坪 (82.38m²)
- 所在地
- :
- 東京都台東区上野5-5-8
- 最寄駅
- :
-
仲御徒町駅まで徒歩4分
御徒町駅まで徒歩5分
末広町駅まで徒歩6分
上野御徒町駅まで徒歩6分
秋葉原駅まで徒歩9分
物件情報
所在地・アクセス
- 物件名
- IMIビル 5階
- 所在地
- 東京都台東区上野5-5-8
- 最寄駅
-
東京メトロ日比谷線 仲御徒町駅まで徒歩4分
JR山手線 御徒町駅まで徒歩5分
東京メトロ銀座線 末広町駅まで徒歩6分
都営大江戸線 上野御徒町駅まで徒歩6分
JR山手線 秋葉原駅まで徒歩9分
賃貸条件
- 賃料(坪単価)
- 相談(@―)
- 礼 金
- 無
- 共益費(坪単価)
- 87,220円(@3,500円)
- 面 積
- 24.92坪 (82.38m²)
- 賃料+共益費(坪単価)
- 相談 (@―)
- 償 却
- 賃料の2ヶ月分
- 預託金(保証金/敷金)
- ―(10ヶ月)
- 入居可能日
- 相談
- 更新料(再契約料)
- 無
- 契約期間
- 2年
物件概要
- 特 徴
- 構 造
- 鉄骨鉄筋コンクリート造/新耐震
- 物件タイプ
- 事務所
- 規 模
- 地下1階付9階建
- 取引態様
- 一般媒介
- 竣 工
- 1986年
- 設 備
-
E V :1基、天井高:―㎜、床仕様:タイルカーペット、空調:個別空調、トイレ: 男女別 洋式
その他:機械警備
- 備 考
-
■電気温水洗浄器付トイレは、残置物となります。 ■貸主指定の保証会社と保証委託契約を締結していただきます。
注) 上記の価格には、別途、消費税及び地方消費税が課されます。
消費税率が変更された場合には、以後、変更後の税率が課されることとなります。
物件情報更新日:2026-02-04
お気軽にお問合せください
- HOME
- >
- エリアから探す
- >
- 台東区
- >
- 上野・御徒町・秋葉原
- >
- IMIビル
- >
- IMIビル 5階
