新耐震
JMFビル江戸川橋01
5階(東京都文京区関口)
新耐震
JMFビル江戸川橋01
5階(東京都文京区関口)
- 賃料(坪単価):
- 相談(@―)
- 共益費(坪単価)
- :
- 相談 (@―)
- 預託金(保証金/敷金)
- :
- 相談(―)
- 面積
- :
- 144.68坪 (478.28m²)
- 所在地
- :
- 東京都文京区関口1-44-10
- 最寄駅
- :
-
江戸川橋駅まで徒歩3分
神楽坂駅まで徒歩12分
早稲田駅まで徒歩12分
早稲田駅まで徒歩12分
護国寺駅まで徒歩15分
物件情報
所在地・アクセス
- 物件名
- JMFビル江戸川橋01 5階
- 所在地
- 東京都文京区関口1-44-10
- 最寄駅
-
東京メトロ有楽町線 江戸川橋駅まで徒歩3分
東京メトロ東西線 神楽坂駅まで徒歩12分
東京さくらトラム(都電荒川線) 早稲田駅まで徒歩12分
東京メトロ東西線 早稲田駅まで徒歩12分
東京メトロ有楽町線 護国寺駅まで徒歩15分
賃貸条件
- 賃料(坪単価)
- 相談(@―)
- 礼 金
- 相談
- 共益費(坪単価)
- 相談(@―)
- 面 積
- 144.68坪 (478.28m²)
- 賃料+共益費(坪単価)
- 相談 (@―)
- 償 却
- 相談
- 預託金(保証金/敷金)
- 相談(―)
- 入居可能日
- 相談
- 更新料(再契約料)
- 相談
- 契約期間
- 相談
物件概要
- 特 徴
- 構 造
- 鉄骨鉄筋コンクリート造/新耐震
- 物件タイプ
- 事務所
- 規 模
- 8階建
- 取引態様
- 一般媒介
- 竣 工
- 1992年10月
- 設 備
-
E V :3基、天井高:2600㎜、床仕様:OAフロア(H=100mm)、空調:個別空調、トイレ:共用 男女別 洋式
その他:機械警備、駐車場設備あり
- 備 考
- お問い合わせください。
物件情報更新日:2026-03-02
お気軽にお問合せください
現在募集中の区画
- 階数
- 面積
- 賃料
- 共益費
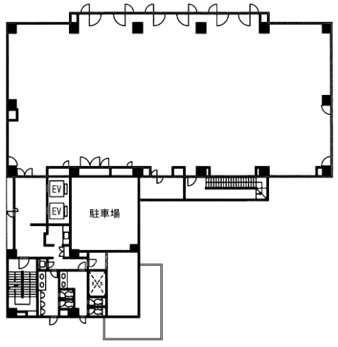
- 間取図
- HOME
- >
- エリアから探す
- >
- 文京区
- >
- 後楽・水道・関口
- >
- JMFビル江戸川橋01
- >
- JMFビル江戸川橋01 5階
