新耐震
ISM秋葉原
5階(東京都台東区台東)
新耐震
ISM秋葉原
5階(東京都台東区台東)
- 賃料(坪単価):
- 2,210,680円(@17,000円)
- 共益費(坪単価)
- :
- 賃料に含む (@―)
- 預託金(保証金/敷金)
- :
- 22,106,800円(10ヶ月)
- 面積
- :
- 130.04坪 (429.90m²)
- 所在地
- :
- 東京都台東区台東1-24-2
- 最寄駅
- :
-
秋葉原駅まで徒歩10分
秋葉原駅まで徒歩10分
新御徒町駅まで徒歩10分
秋葉原駅まで徒歩10分
秋葉原駅まで徒歩10分
物件情報
所在地・アクセス
- 物件名
- ISM秋葉原 5階
- 所在地
- 東京都台東区台東1-24-2
- 最寄駅
-
JR山手線 秋葉原駅まで徒歩10分
東京メトロ日比谷線 秋葉原駅まで徒歩10分
都営大江戸線 新御徒町駅まで徒歩10分
JR京浜東北線 秋葉原駅まで徒歩10分
JR中央線 秋葉原駅まで徒歩10分
賃貸条件
- 賃料(坪単価)
- 2,210,680円(@17,000円)
- 礼 金
- 無
- 共益費(坪単価)
- 賃料に含む(@―)
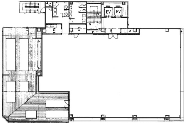
- 面 積
- 130.04坪 (429.90m²)
- 賃料+共益費(坪単価)
- 2,210,680円 (@17,000円)
- 償 却
- 無
- 預託金(保証金/敷金)
- 22,106,800円(10ヶ月)
- 入居可能日
- 相談
- 更新料(再契約料)
- 無
- 契約期間
- 3年
物件概要
- 特 徴
- 構 造
- 鉄骨鉄筋コンクリート造・鉄骨造/新耐震
- 物件タイプ
- 事務所
- 規 模
- 地下1階付7階建
- 取引態様
- 一般媒介
- 竣 工
- 1988年9月
- 設 備
-
E V :2基、天井高:2500㎜、床仕様:OAフロア、空調:個別空調、トイレ:専用 男女別 洋式
その他:機械警備、駐車場設備あり
- 備 考
-
■2021年2月、エントランスリニューアル実施済 ■2025年8月、水回りリニューアル工事済 ■貸室面積には、トイレ・給湯室等の面積が含まれます。 ■床荷重:300㎏/㎡ ■貸主指定の保証会社と保証委託契約を締結していただく場合がございます。
注) 上記の価格には、別途、消費税及び地方消費税が課されます。
消費税率が変更された場合には、以後、変更後の税率が課されることとなります。
物件情報更新日:2025-10-09
お気軽にお問合せください
- HOME
- >
- エリアから探す
- >
- 台東区
- >
- 上野・御徒町・秋葉原
- >
- ISM秋葉原
- >
- ISM秋葉原 5階
