森光ビル
3階B室(東京都千代田区神田和泉町)
森光ビル
3階B室(東京都千代田区神田和泉町)
- 賃料(坪単価):
- 192,000円(@―)
- 共益費(坪単価)
- :
- 賃料に含む (@―)
- 預託金(保証金/敷金)
- :
- 1,152,000円(6ヶ月)
- 面積
- :
- 13.34坪 (44.10m²)
- 所在地
- :
- 東京都千代田区神田和泉町1-10-4
- 最寄駅
- :
-
秋葉原駅まで徒歩5分
秋葉原駅まで徒歩6分
岩本町駅まで徒歩9分
末広町駅まで徒歩10分
浅草橋駅まで徒歩11分
物件情報
所在地・アクセス
- 物件名
- 森光ビル 3階B室
- 所在地
- 東京都千代田区神田和泉町1-10-4
- 最寄駅
-
東京メトロ日比谷線 秋葉原駅まで徒歩5分
JR山手線 秋葉原駅まで徒歩6分
都営新宿線 岩本町駅まで徒歩9分
東京メトロ銀座線 末広町駅まで徒歩10分
JR中央線 浅草橋駅まで徒歩11分
賃貸条件
- 賃料(坪単価)
- 192,000円(@―)
- 礼 金
- 無
- 共益費(坪単価)
- 賃料に含む(@―)
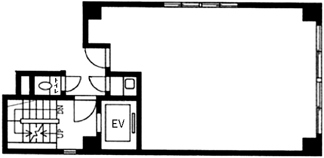
- 面 積
- 13.34坪 (44.10m²)
- 賃料+共益費(坪単価)
- 192,000円 (@―)
- 償 却
- 賃料の2ヶ月分
- 預託金(保証金/敷金)
- 1,152,000円(6ヶ月)
- 入居可能日
- 即日
- 更新料(再契約料)
- 新賃料の1ヶ月分
- 契約期間
- 2年
物件概要
- 特 徴
-
- 構 造
- 鉄筋コンクリート造
- 物件タイプ
- 事務所
- 規 模
- 6階建
- 取引態様
- 一般媒介
- 竣 工
- 1983年1月
- 設 備
-
E V :1基、天井高:―㎜、床仕様:―、空調:個別空調、トイレ:共用 男女共用 洋式
- 備 考
-
■電気基本料:月額8,000円 ■水道使用料:月額2,500円 ■電気温水洗浄器付トイレ ■貸主指定の保証会社と保証委託契約を締結していただきます。
注) 上記の価格には、別途、消費税及び地方消費税が課されます。
消費税率が変更された場合には、以後、変更後の税率が課されることとなります。
物件情報更新日:2026-04-15
お気軽にお問合せください
- HOME
- >
- エリアから探す
- >
- 千代田区
- >
- 御茶ノ水・神田・秋葉原
- >
- 森光ビル
- >
- 森光ビル 3階B室
