新耐震
BASEGATE横浜関内タワー
15階(神奈川県横浜市中区港町)
新耐震
BASEGATE横浜関内タワー
15階(神奈川県横浜市中区港町)
- 賃料(坪単価):
- 相談(@―)
- 共益費(坪単価)
- :
- 賃料に含む (@―)
- 預託金(保証金/敷金)
- :
- ―(12ヶ月)
- 面積
- :
- 675.00坪 (2231.40m²)
- 所在地
- :
- 神奈川県横浜市中区港町1-1-1他
- 最寄駅
- :
-
関内駅まで徒歩1分
関内駅まで徒歩1分
伊勢佐木長者町駅まで徒歩7分
日本大通り駅まで徒歩9分
桜木町駅まで徒歩13分
物件情報
所在地・アクセス
- 物件名
- BASEGATE横浜関内タワー 15階
- 所在地
- 神奈川県横浜市中区港町1-1-1他
- 最寄駅
-
JR根岸線 関内駅まで徒歩1分
横浜市営ブルーライン 関内駅まで徒歩1分
横浜市営ブルーライン 伊勢佐木長者町駅まで徒歩7分
横浜高速鉄道みなとみらい線 日本大通り駅まで徒歩9分
JR根岸線 桜木町駅まで徒歩13分
賃貸条件
- 賃料(坪単価)
- 相談(@―)
- 礼 金
- 無
- 共益費(坪単価)
- 賃料に含む(@―)
- 面 積
- 675.00坪 (2231.40m²)
- 賃料+共益費(坪単価)
- 相談 (@―)
- 償 却
- 無
- 預託金(保証金/敷金)
- ―(12ヶ月)
- 入居可能日
- 即日
- 更新料(再契約料)
- 無
- 契約期間
- 5年(定借)
物件概要
- 特 徴
- 構 造
- S造・CFT造/新耐震
- 物件タイプ
- 事務所
- 規 模
- 地下1階付33階建
- 取引態様
- 一般媒介
- 竣 工
- 2025年12月
- 設 備
-
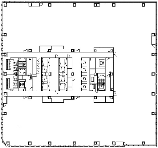
E V :19基、天井高:2800㎜、床仕様:OAフロア(H=100mm)、空調:個別空調、トイレ: 男女別 洋式
その他:機械警備、駐車場設備あり
- 備 考
-
■制震構造 ■床荷重:500㎏/㎡(一部1,000㎏/㎡) ■電気容量:60VA/㎡(40VA/㎡増設可能) ■600mm角グリッドシステム天井 ■EV⇒乗用:12基(24人乗)、非常用:2基(36人乗・26人乗)、シャトルEV:5基(53人乗)
注) 上記の価格には、別途、消費税及び地方消費税が課されます。
消費税率が変更された場合には、以後、変更後の税率が課されることとなります。
物件情報更新日:2026-02-02
お気軽にお問合せください
現在募集中の区画
- 階数
- 面積
- 賃料
- 共益費
- 間取図
- HOME
- >
- エリアから探す
- >
- 横浜エリア
- >
- 横浜市中区
- >
- BASEGATE横浜関内タワー
- >
- BASEGATE横浜関内タワー 15階
