新耐震
TORANOGATE
10階(東京都港区虎ノ門)
新耐震
TORANOGATE
10階(東京都港区虎ノ門)
- 賃料(坪単価):
- 相談(@―)
- 共益費(坪単価)
- :
- 相談 (@―)
- 預託金(保証金/敷金)
- :
- 相談(―)
- 面積
- :
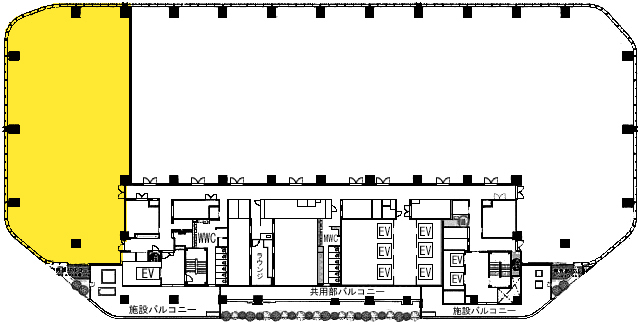
- 204.66坪 (676.59m²)
- 所在地
- :
- 東京都港区虎ノ門1-1000(地番)
- 最寄駅
- :
-
虎ノ門駅まで徒歩1分
虎ノ門ヒルズ駅まで徒歩4分
霞ヶ関駅まで徒歩4分
霞ヶ関駅まで徒歩4分
内幸町駅まで徒歩5分
物件情報
所在地・アクセス
- 物件名
- TORANOGATE 10階
- 所在地
- 東京都港区虎ノ門1-1000(地番)
- 最寄駅
-
東京メトロ銀座線 虎ノ門駅まで徒歩1分
東京メトロ日比谷線 虎ノ門ヒルズ駅まで徒歩4分
東京メトロ千代田線 霞ヶ関駅まで徒歩4分
東京メトロ丸ノ内線 霞ヶ関駅まで徒歩4分
都営三田線 内幸町駅まで徒歩5分
賃貸条件
- 賃料(坪単価)
- 相談(@―)
- 礼 金
- 相談
- 共益費(坪単価)
- 相談(@―)
- 面 積
- 204.66坪 (676.59m²)
- 賃料+共益費(坪単価)
- 相談 (@―)
- 償 却
- 相談
- 預託金(保証金/敷金)
- 相談(―)
- 入居可能日
- 相談
- 更新料(再契約料)
- 相談
- 契約期間
- 相談
物件概要
- 特 徴
- 構 造
- S造(一部SRC造・RC造)/新耐震
- 物件タイプ
- 事務所
- 規 模
- 地下4階付29階建
- 取引態様
- 一般媒介
- 竣 工
- 2027年10月竣工予定
- 設 備
-
E V :21基、天井高:2900㎜、床仕様:OAフロア(H=100mm)、空調:セントラル・個別併用、トイレ:共用 男女別 洋式
その他:エントランスセキュリティ、駐車場設備あり
- 備 考
- お問い合わせください。
物件情報更新日:2026-05-07
お気軽にお問合せください
現在募集中の区画
- 階数
- 面積
- 賃料
- 共益費
- 間取図
- HOME
- >
- エリアから探す
- >
- 港区
- >
- 虎ノ門・神谷町
- >
- TORANOGATE
- >
- TORANOGATE 10階
