新耐震
MT東池袋ビル
7階(東京都豊島区東池袋)
新耐震
MT東池袋ビル
7階(東京都豊島区東池袋)
- 賃料(坪単価):
- 290,000円(@―)
- 共益費(坪単価)
- :
- 30,000円 (@―)
- 預託金(保証金/敷金)
- :
- 1,160,000円(4ヶ月)
- 面積
- :
- 16.01坪 (52.93m²)
- 所在地
- :
- 東京都豊島区東池袋2-13-9
- 最寄駅
- :
-
大塚駅まで徒歩4分
大塚前駅まで徒歩6分
巣鴨新田駅まで徒歩7分
新大塚駅まで徒歩11分
物件情報
所在地・アクセス
- 物件名
- MT東池袋ビル 7階
- 所在地
- 東京都豊島区東池袋2-13-9
- 最寄駅
-
JR山手線 大塚駅まで徒歩4分
東京さくらトラム(都電荒川線) 大塚前駅まで徒歩6分
東京さくらトラム(都電荒川線) 巣鴨新田駅まで徒歩7分
東京メトロ丸ノ内線 新大塚駅まで徒歩11分
賃貸条件
- 賃料(坪単価)
- 290,000円(@―)
- 礼 金
- 賃料の1ヶ月分
- 共益費(坪単価)
- 30,000円(@―)
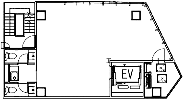
- 面 積
- 16.01坪 (52.93m²)
- 賃料+共益費(坪単価)
- 320,000円 (@―)
- 償 却
- 無
- 預託金(保証金/敷金)
- 1,160,000円(4ヶ月)
- 入居可能日
- 即日
- 更新料(再契約料)
- 新賃料の1ヶ月分
- 契約期間
- 2年
物件概要
- 特 徴
- 構 造
- 鉄骨造/新耐震
- 物件タイプ
- 事務所
- 規 模
- 8階建
- 取引態様
- 一般媒介
- 竣 工
- 2026年1月竣工予定
- 設 備
-
E V :1基(9人乗)、天井高:―㎜、床仕様:―、空調:個別空調、トイレ:専用 男女別 洋式
その他:機械警備、EV不停止機能付
- 備 考
-
■サービス店舗可能 ■電気容量⇒電灯:12KVA、動力:最大10KW ■貸主指定の保証会社(日本セーフティー)をご利用いただけます。
注) 上記の価格には、別途、消費税及び地方消費税が課されます。
消費税率が変更された場合には、以後、変更後の税率が課されることとなります。
物件情報更新日:2026-02-02
お気軽にお問合せください
現在募集中の区画
- 階数
- 面積
- 賃料
- 共益費
- 間取図
