新耐震
新横浜SHビル
7階(神奈川県横浜市港北区新横浜)
新耐震
新横浜SHビル
7階(神奈川県横浜市港北区新横浜)
- 賃料(坪単価):
- 相談(@―)
- 共益費(坪単価)
- :
- 相談 (@―)
- 預託金(保証金/敷金)
- :
- 相談(―)
- 面積
- :
- 138.62坪 (458.25m²)
- 所在地
- :
- 神奈川県横浜市港北区新横浜3-9-3
- 最寄駅
- :
-
新横浜駅まで徒歩5分
新横浜駅まで徒歩5分
新横浜駅まで徒歩5分
新横浜駅まで徒歩5分
物件情報
所在地・アクセス
- 物件名
- 新横浜SHビル 7階
- 所在地
- 神奈川県横浜市港北区新横浜3-9-3
- 最寄駅
-
JR横浜線 新横浜駅まで徒歩5分
横浜市営ブルーライン 新横浜駅まで徒歩5分
相鉄新横浜線 新横浜駅まで徒歩5分
東急新横浜線 新横浜駅まで徒歩5分
賃貸条件
- 賃料(坪単価)
- 相談(@―)
- 礼 金
- 相談
- 共益費(坪単価)
- 相談(@―)
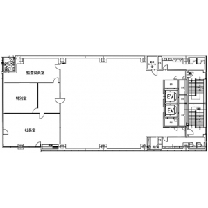
- 面 積
- 138.62坪 (458.25m²)
- 賃料+共益費(坪単価)
- 相談 (@―)
- 償 却
- 相談
- 預託金(保証金/敷金)
- 相談(―)
- 入居可能日
- 相談
- 更新料(再契約料)
- 相談
- 契約期間
- 相談
物件概要
- 特 徴
- 構 造
- 鉄骨鉄筋コンクリート造/新耐震
- 物件タイプ
- 事務所
- 規 模
- 地下2階付11階建
- 取引態様
- 一般媒介
- 竣 工
- 2009年1月
- 設 備
-
E V :2基(15人乗)、天井高:2800㎜、床仕様:OAフロア(H=100mm)、空調:個別空調、トイレ: 男女別 洋式
その他:駐車場設備あり
- 備 考
- お問い合わせください。
物件情報更新日:2025-10-23
お気軽にお問合せください
現在募集中の区画
- 階数
- 面積
- 賃料
- 共益費
- 間取図
