当社貸主物件
セットアップオフィス
新耐震
THE PORTAL 田町 (旧:藤ビル)
3階(東京都港区芝)
当社貸主物件
セットアップオフィス
新耐震
THE PORTAL 田町 (旧:藤ビル)
3階(東京都港区芝)
- 賃料(坪単価):
- 1,905,090円(@33,000円)
- 共益費(坪単価)
- :
- 賃料に含む (@―)
- 預託金(保証金/敷金)
- :
- 11,430,540円(6ヶ月)
- 面積
- :
- 57.73坪 (190.87m²)
- 所在地
- :
- 東京都港区芝5-30-9
- 最寄駅
- :
-
三田駅まで徒歩2分
三田駅まで徒歩2分
田町駅まで徒歩4分
田町駅まで徒歩4分
泉岳寺駅まで徒歩13分
撮影更新日:2025年12月03日
スタッフコメント
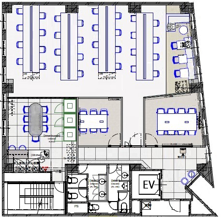
【田町駅】周辺は再開発が進行中の大手企業や大学が集積するビジネスと学術が融合した街として活気ある産学官連携のモデルエリアです。 交通アクセスにおいては、JR山手線・京浜東北線【田町駅】、都営浅草線・三田線【三田駅】が徒歩5分圏内で利用可能な立地となっており、都内主要エリアへのアクセスにも便利な立地となっております。基準階の貸室内は、アースカラーを基調とした柔らかな印象のあるデザインで統一され、受付・会議室2室(6名用×1)・テレカンブース×3・ラウンジ・執務室固定席32席分が設置された什器付セットアップオフィスとなっております。入居時に発生する電源工事や室内の内装工事が不要で、インターネット工事と荷物のお引越しですぐにご利用可能なオフィス環境が整っております。港区内で30名前後のオフィスをお探しの企業様、是非一度ご内見ください!
担当:構 勇紀 支店:浜松町店 更新日:2026年4月25日
物件情報
所在地・アクセス
- 物件名
- THE PORTAL 田町 (旧:藤ビル) 3階
- 所在地
- 東京都港区芝5-30-9
- 最寄駅
-
都営浅草線 三田駅まで徒歩2分
都営三田線 三田駅まで徒歩2分
JR山手線 田町駅まで徒歩4分
JR京浜東北線 田町駅まで徒歩4分
都営浅草線 泉岳寺駅まで徒歩13分
賃貸条件
- 賃料(坪単価)
- 1,905,090円(@33,000円)
- 礼 金
- 無
- 共益費(坪単価)
- 賃料に含む(@―)
- 面 積
- 57.73坪 (190.87m²)
- 賃料+共益費(坪単価)
- 1,905,090円 (@33,000円)
- 償 却
- 無
- 預託金(保証金/敷金)
- 11,430,540円(6ヶ月)
- 入居可能日
- 2026年5月1日予定
- 更新料(再契約料)
- 無
- 契約期間
- 2年
物件概要
- 特 徴
- 構 造
- 鉄骨造/新耐震
- 物件タイプ
- 事務所
- 規 模
- 地下1階付10階建
- 取引態様
- 貸主
- 竣 工
- 1987年9月
- 設 備
-
E V :1基(11人乗)、天井高:―㎜、床仕様:OAフロア、空調:個別空調、トイレ:専用 男女別 洋式
その他:機械警備
- 備 考
-
■2025年12月、内装・什器付セットアップオフィス工事完了!(受付、6名用・8名用会議室、ラウンジ、フォンブース×3、執務室什器32席分) ■貸主指定の清掃会社と貸室内の清掃契約を締結していただきます。 ■SFビルサポート株式会社と保証委託契約を締結していただきます。 ※与信状況によって預託金額が変動する場合がございます。
注) 上記の価格には、別途、消費税及び地方消費税が課されます。
消費税率が変更された場合には、以後、変更後の税率が課されることとなります。
物件情報更新日:2026-04-24
お気軽にお問合せください
現在募集中の区画
- 階数
- 面積
- 賃料
- 共益費
- 間取図
- HOME
- >
- エリアから探す
- >
- 港区
- >
- 田町・三田
- >
- THE PORTAL 田町 (旧:藤ビル)
- >
- THE PORTAL 田町 (旧:藤ビル) 3階
