新耐震
ヤブ原ビル
5階(東京都中央区八丁堀)
新耐震
ヤブ原ビル
5階(東京都中央区八丁堀)
- 賃料(坪単価):
- 相談(@―)
- 共益費(坪単価)
- :
- 賃料に含む (@―)
- 預託金(保証金/敷金)
- :
- ―(12ヶ月)
- 面積
- :
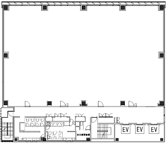
- 168.95坪 (558.53m²)
- 所在地
- :
- 東京都中央区八丁堀2-119-3他(地番)
- 最寄駅
- :
-
八丁堀駅まで徒歩2分
八丁堀駅まで徒歩4分
茅場町駅まで徒歩6分
宝町駅まで徒歩7分
京橋駅まで徒歩10分
物件情報
所在地・アクセス
- 物件名
- ヤブ原ビル 5階
- 所在地
- 東京都中央区八丁堀2-119-3他(地番)
- 最寄駅
-
東京メトロ日比谷線 八丁堀駅まで徒歩2分
JR京葉線 八丁堀駅まで徒歩4分
東京メトロ東西線 茅場町駅まで徒歩6分
都営浅草線 宝町駅まで徒歩7分
東京メトロ銀座線 京橋駅まで徒歩10分
賃貸条件
- 賃料(坪単価)
- 相談(@―)
- 礼 金
- 無
- 共益費(坪単価)
- 賃料に含む(@―)
- 面 積
- 168.95坪 (558.53m²)
- 賃料+共益費(坪単価)
- 相談 (@―)
- 償 却
- 無
- 預託金(保証金/敷金)
- ―(12ヶ月)
- 入居可能日
- 即日
- 更新料(再契約料)
- 無
- 契約期間
- 3~5年(定借)
物件概要
- 特 徴
- 構 造
- 鉄骨造一部鉄筋コンクリート造/新耐震
- 物件タイプ
- 事務所
- 規 模
- 地下1階付10階建
- 取引態様
- 一般媒介
- 竣 工
- 2027年2月竣工予定
- 設 備
-
E V :乗用:3基(17人乗・15人乗)、天井高:2,800mm(一部2,500mm)㎜、床仕様:OAフロア(H=100mm)、空調:個別空調、トイレ:共用 男女別 洋式
その他:機械警備、駐車場設備あり
- 備 考
-
■耐震構造 ■貸室面積には、トイレ・給湯室・防災備蓄倉庫(約6.00㎡)等の面積は含まれません。 ■床荷重:500㎏/㎡(一部1,000㎏/㎡) ■電灯・コンセント容量:60VA/㎡(最大80VA/㎡まで増設可能) ■机上平均照度:500Lx ■600mm角グリッド式システム天井 ■電気温水洗浄器付トイレ
注) 上記の価格には、別途、消費税及び地方消費税が課されます。
消費税率が変更された場合には、以後、変更後の税率が課されることとなります。
物件情報更新日:2026-04-20
お気軽にお問合せください
現在募集中の区画
- 階数
- 面積
- 賃料
- 共益費
- 間取図
- HOME
- >
- エリアから探す
- >
- 中央区
- >
- 築地・新富・八丁堀・入船
- >
- ヤブ原ビル
- >
- ヤブ原ビル 5階
