新耐震
ダイヤモンドビル
3階(東京都渋谷区神宮前)
新耐震
ダイヤモンドビル
3階(東京都渋谷区神宮前)
- 賃料(坪単価):
- 相談(@―)
- 共益費(坪単価)
- :
- 相談 (@―)
- 預託金(保証金/敷金)
- :
- 相談(―)
- 面積
- :
- 140.31坪 (463.85m²)
- 所在地
- :
- 東京都渋谷区神宮前6-12-17
- 最寄駅
- :
-
明治神宮前駅まで徒歩5分
明治神宮前駅まで徒歩5分
原宿駅まで徒歩8分
表参道駅まで徒歩11分
表参道駅まで徒歩11分
物件情報
所在地・アクセス
- 物件名
- ダイヤモンドビル 3階
- 所在地
- 東京都渋谷区神宮前6-12-17
- 最寄駅
-
東京メトロ千代田線 明治神宮前駅まで徒歩5分
東京メトロ副都心線 明治神宮前駅まで徒歩5分
JR山手線 原宿駅まで徒歩8分
東京メトロ銀座線 表参道駅まで徒歩11分
東京メトロ半蔵門線 表参道駅まで徒歩11分
賃貸条件
- 賃料(坪単価)
- 相談(@―)
- 礼 金
- 相談
- 共益費(坪単価)
- 相談(@―)
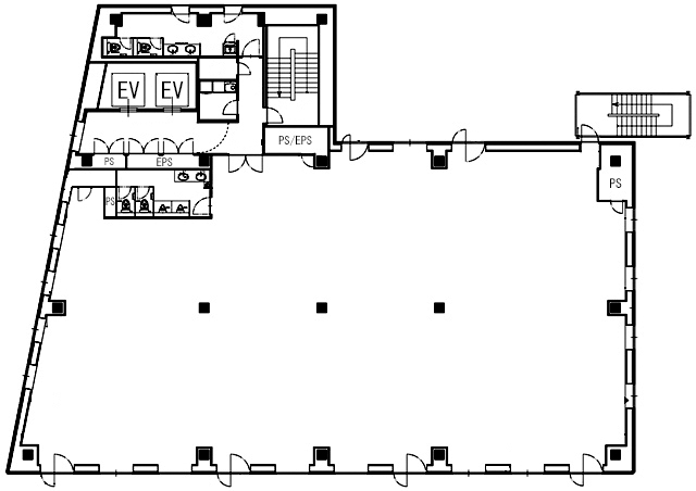
- 面 積
- 140.31坪 (463.85m²)
- 賃料+共益費(坪単価)
- 相談 (@―)
- 償 却
- 相談
- 預託金(保証金/敷金)
- 相談(―)
- 入居可能日
- 相談
- 更新料(再契約料)
- 相談
- 契約期間
- 相談
物件概要
- 特 徴
- 構 造
- 鉄骨造/新耐震
- 物件タイプ
- 事務所
- 規 模
- 9階建
- 取引態様
- 一般媒介
- 竣 工
- 1990年11月
- 設 備
-
E V :2基(15人乗)、天井高:2400㎜、床仕様:OAフロア(H=50mm)、空調:個別空調、トイレ: 男女別 洋式
その他:機械警備、駐車場設備あり
- 備 考
- お問い合わせください。
物件情報更新日:2026-04-24
お気軽にお問合せください
現在募集中の区画
- 階数
- 面積
- 賃料
- 共益費
- 間取図
