当社管理物件
セットアップオフィス
靖国外苑ビル (旧:川内ビル)
5階(東京都千代田区九段南)
当社管理物件
セットアップオフィス
靖国外苑ビル (旧:川内ビル)
5階(東京都千代田区九段南)
- 賃料(坪単価):
- 736,290円(@27,000円)
- 共益費(坪単価)
- :
- 賃料に含む (@―)
- 預託金(保証金/敷金)
- :
- 2,208,870円(3ヶ月)
- 面積
- :
- 27.27坪 (90.133m²)
- 所在地
- :
- 東京都千代田区九段南3-8-10
- 最寄駅
- :
-
市ヶ谷駅まで徒歩4分
市ヶ谷駅まで徒歩4分
市ヶ谷駅まで徒歩4分
市ヶ谷駅まで徒歩8分
九段下駅まで徒歩10分
スタッフコメント
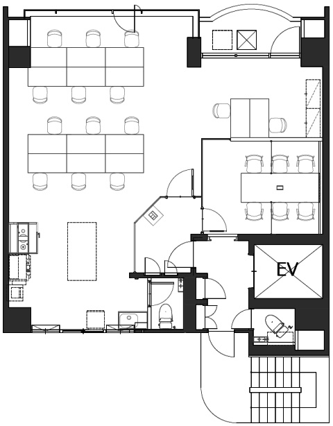
靖国通り沿いに面している当物件。周辺には、靖国神社や千鳥ヶ淵緑道があり、都心に居ながらも喧騒を感じさせない自然溢れる街並みが魅力的です。窓の外に目を向けると靖国神社が広がっており、春には満開の桜を、秋にはいちょう並木を楽しむことができ、四季の移り変わりを感じることができる五感を刺激する居心地のよいオフィスです。2026年6月貸室リニューアル工事実施予定です。室内には受付・執務室(14席分)・会議室×1室・テレカンブース(集中個室ブース)×1室の造作及び什器を設置しておりますので、入居後すぐに業務を開始していただけます。クリエイティブな発想が飛び交う開放的なオフィス環境、ご入居テナント様の更なる発展の後押しいたします。
担当:大熊 勇輝 支店:麹町店 更新日:2026年4月25日
物件情報
所在地・アクセス
- 物件名
- 靖国外苑ビル (旧:川内ビル) 5階
- 所在地
- 東京都千代田区九段南3-8-10
- 最寄駅
-
東京メトロ南北線 市ヶ谷駅まで徒歩4分
東京メトロ有楽町線 市ヶ谷駅まで徒歩4分
都営新宿線 市ヶ谷駅まで徒歩4分
JR中央線 市ヶ谷駅まで徒歩8分
都営新宿線 九段下駅まで徒歩10分
賃貸条件
- 賃料(坪単価)
- 736,290円(@27,000円)
- 礼 金
- 無
- 共益費(坪単価)
- 賃料に含む(@―)
- 面 積
- 27.27坪 (90.133m²)
- 賃料+共益費(坪単価)
- 736,290円 (@27,000円)
- 償 却
- 無
- 預託金(保証金/敷金)
- 2,208,870円(3ヶ月)
- 入居可能日
- 2026年7月上旬予定
- 更新料(再契約料)
- 新賃料の1ヶ月分
- 契約期間
- 2年
物件概要
- 特 徴
- 構 造
- 鉄骨鉄筋コンクリート造
- 物件タイプ
- 事務所
- 規 模
- 10階建
- 取引態様
- 一般媒介
- 竣 工
- 1982年10月
- 設 備
-
E V :1基、天井高:―㎜、床仕様:―、空調:個別空調、トイレ: 男女別 洋式
その他:機械警備
- 備 考
-
※リニューアル内容・レイアウト等、変更となる可能性がございますので、予めご了承ください。 ■2026年6月、内装造作付きセットアップ工事完了予定 ■原状回復義務なし(原状変更した場合や破損等を除く) ■クリーニング費用をご負担いただきます(契約時) ■新耐震基準 ■貸主指定の清掃会社と貸室内の清掃契約を締結していただきます。 ■SFビルサポート株式会社と保証委託契約を締結していただきます。 ※与信状況によって預託金額が変動する場合がございます。
注) 上記の価格には、別途、消費税及び地方消費税が課されます。
消費税率が変更された場合には、以後、変更後の税率が課されることとなります。
物件情報更新日:2026-04-24
お気軽にお問合せください
現在募集中の区画
- 階数
- 面積
- 賃料
- 共益費
- 間取図
- HOME
- >
- エリアから探す
- >
- 千代田区
- >
- 市ヶ谷・番町・麹町
- >
- 靖国外苑ビル (旧:川内ビル)
- >
- 靖国外苑ビル (旧:川内ビル) 5階
