新耐震
新橋フロンティアビルディング
7階(東京都港区新橋)
新耐震
新橋フロンティアビルディング
7階(東京都港区新橋)
- 賃料(坪単価):
- 1,164,240円(@22,000円)
- 共益費(坪単価)
- :
- 無 (@―)
- 預託金(保証金/敷金)
- :
- 11,642,400円(10ヶ月)
- 面積
- :
- 52.92坪 (174.97m²)
- 所在地
- :
- 東京都港区新橋3-4-5
- 最寄駅
- :
-
新橋駅まで徒歩5分
新橋駅まで徒歩5分
内幸町駅まで徒歩5分
新橋駅まで徒歩5分
御成門駅まで徒歩7分
物件情報
所在地・アクセス
- 物件名
- 新橋フロンティアビルディング 7階
- 所在地
- 東京都港区新橋3-4-5
- 最寄駅
-
JR山手線 新橋駅まで徒歩5分
東京メトロ銀座線 新橋駅まで徒歩5分
都営三田線 内幸町駅まで徒歩5分
都営浅草線 新橋駅まで徒歩5分
都営三田線 御成門駅まで徒歩7分
賃貸条件
- 賃料(坪単価)
- 1,164,240円(@22,000円)
- 礼 金
- 無
- 共益費(坪単価)
- 無(@―)
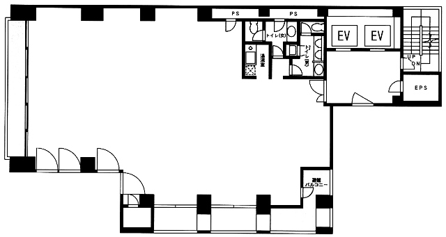
- 面 積
- 52.92坪 (174.97m²)
- 賃料+共益費(坪単価)
- 1,164,240円 (@22,000円)
- 償 却
- 無
- 預託金(保証金/敷金)
- 11,642,400円(10ヶ月)
- 入居可能日
- 2026年2月7日予定
- 更新料(再契約料)
- 無
- 契約期間
- 2年
物件概要
- 特 徴
- 構 造
- 鉄骨鉄筋コンクリート造/新耐震
- 物件タイプ
- 事務所
- 規 模
- 地下2階付10階建
- 取引態様
- 一般媒介
- 竣 工
- 1993年3月
- 設 備
-
E V :2基(9人乗)、天井高:2390㎜、床仕様:OAフロア(H=50mm)、空調:個別空調、トイレ:専用 男女別 洋式
その他:機械警備、駐車場設備あり
- 備 考
-
■産業廃棄物処理費用を、別途ご負担いただきます。 ■床荷重:300㎏/㎡ ■貸主指定の保険にご加入いただきます。 ■貸主指定の保証会社と保証委託契約を締結していただきます。
注) 上記の価格には、別途、消費税及び地方消費税が課されます。
消費税率が変更された場合には、以後、変更後の税率が課されることとなります。
物件情報更新日:2026-01-27
お気軽にお問合せください
- HOME
- >
- エリアから探す
- >
- 港区
- >
- 新橋・汐留
- >
- 新橋フロンティアビルディング
- >
- 新橋フロンティアビルディング 7階
