居抜物件
セントヒルズ代々木 (内海ビル)
201室(東京都渋谷区代々木)
居抜物件
セントヒルズ代々木 (内海ビル)
201室(東京都渋谷区代々木)
- 賃料(坪単価):
- 1,600,000円(@―)
- 共益費(坪単価)
- :
- 200,000円 (@―)
- 預託金(保証金/敷金)
- :
- 9,600,000円(6ヶ月)
- 面積
- :
- 87.65坪 (289.76m²)
- 所在地
- :
- 東京都渋谷区代々木1-55-14
- 最寄駅
- :
-
代々木駅まで徒歩2分
代々木駅まで徒歩2分
南新宿駅まで徒歩3分
新宿駅まで徒歩7分
新宿駅まで徒歩9分
物件情報
所在地・アクセス
- 物件名
- セントヒルズ代々木 (内海ビル) 201室
- 所在地
- 東京都渋谷区代々木1-55-14
- 最寄駅
-
都営大江戸線 代々木駅まで徒歩2分
JR山手線 代々木駅まで徒歩2分
小田急小田原線 南新宿駅まで徒歩3分
都営大江戸線 新宿駅まで徒歩7分
JR山手線 新宿駅まで徒歩9分
賃貸条件
- 賃料(坪単価)
- 1,600,000円(@―)
- 礼 金
- 賃料の1ヶ月分
- 共益費(坪単価)
- 200,000円(@―)
- 面 積
- 87.65坪 (289.76m²)
- 賃料+共益費(坪単価)
- 1,800,000円 (@―)
- 償 却
- 賃料の2ヶ月分
- 預託金(保証金/敷金)
- 9,600,000円(6ヶ月)
- 入居可能日
- 即日
- 更新料(再契約料)
- 新賃料の1ヶ月分
- 契約期間
- 2年
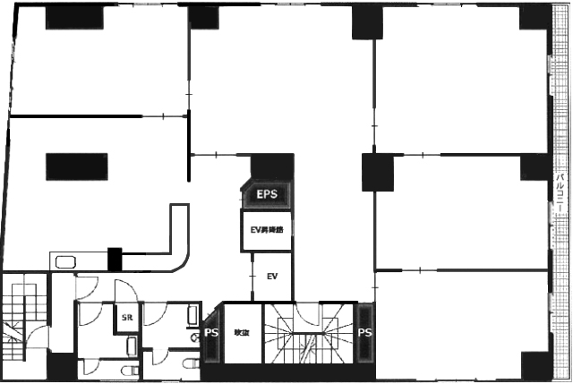
物件概要
- 特 徴
- 構 造
- 鉄骨鉄筋コンクリート造
- 物件タイプ
- 事務所
- 規 模
- 地下1階付13階建
- 取引態様
- 一般媒介
- 竣 工
- 1982年10月
- 設 備
-
E V :1基、天井高:2600㎜、床仕様:塩ビシート、空調:個別空調、トイレ:専用 男女別 洋式
その他:エントランスセキュリティ
- 備 考
-
■鍵交換費用:25,000円~ ■契約事務手数料:25,000円 ■更新事務手数料:25,000円 ■短期解約違約金あり⇒1年未満解約の場合:賃料の1ヶ月分 ■その他設備⇒防犯カメラ、宅配BOX ■貸主指定の火災保険にご加入いただきます。 ■貸主指定の保証会社(ぶけなびPLUS)と保証委託契約を締結していただきます。 ※与信状況によって預託金額が変動する場合がございます。
注) 上記の価格には、別途、消費税及び地方消費税が課されます。
消費税率が変更された場合には、以後、変更後の税率が課されることとなります。
物件情報更新日:2026-04-08
お気軽にお問合せください
- HOME
- >
- エリアから探す
- >
- 渋谷区
- >
- 代々木
- >
- セントヒルズ代々木 (内海ビル)
- >
- セントヒルズ代々木 (内海ビル) 201室
