当社管理物件
キャンペーン実施中
新耐震
新橋六丁目ビル
3階(東京都港区新橋)
当社管理物件
キャンペーン実施中
新耐震
新橋六丁目ビル
3階(東京都港区新橋)
- 賃料(坪単価):
- 相談(@―)
- 共益費(坪単価)
- :
- 賃料に含む (@―)
- 預託金(保証金/敷金)
- :
- ―(無)
- 面積
- :
- 77.19坪 (255.18m²)
- 所在地
- :
- 東京都港区新橋6-9-4
- 最寄駅
- :
-
御成門駅まで徒歩6分
大門駅まで徒歩7分
大門駅まで徒歩7分
新橋駅まで徒歩8分
汐留駅まで徒歩8分
スタッフコメント
JR山手線【新橋駅】徒歩8分の立地となっており、第一京浜通り沿いにございます。また、駅から物件までの道のりに飲食店舗も多く、ランチ環境も充実しており、コンビニへは徒歩1分圏内です。当ビルにはエレベーターが2基ございますので、通勤時やお昼休憩時の混雑緩和となります。そして当ビル1階には、入居者専用のラウンジが設けられており、休憩スペースやミーティングスペースとしてご利用いただくことが可能です。是非一度ご覧くださいませ!
担当:安井 大悟 支店:新橋店 更新日:2025年12月10日
物件情報
所在地・アクセス
- 物件名
- 新橋六丁目ビル 3階
- 所在地
- 東京都港区新橋6-9-4
- 最寄駅
-
都営三田線 御成門駅まで徒歩6分
都営浅草線 大門駅まで徒歩7分
都営大江戸線 大門駅まで徒歩7分
JR山手線 新橋駅まで徒歩8分
都営大江戸線 汐留駅まで徒歩8分
賃貸条件
- 賃料(坪単価)
- 相談(@―)
- 礼 金
- 無
- 共益費(坪単価)
- 賃料に含む(@―)
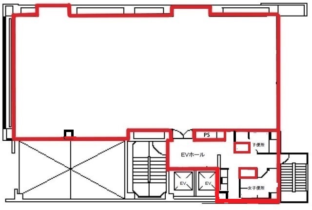
- 面 積
- 77.19坪 (255.18m²)
- 賃料+共益費(坪単価)
- 相談 (@―)
- 償 却
- 無
- 預託金(保証金/敷金)
- ―(無)
- 入居可能日
- 2026年2月10日予定
- 更新料(再契約料)
- 無
- 契約期間
- 2年
物件概要
- 特 徴
- 構 造
- 鉄骨鉄筋コンクリート造/新耐震
- 物件タイプ
- 事務所
- 規 模
- 地下2階付8階建
- 取引態様
- 一般媒介
- 竣 工
- 1987年12月
- 設 備
-
E V :2基、天井高:2550㎜、床仕様:OAフロア(H=50mm)、空調:個別空調、トイレ:専用 男女別 洋式
その他:機械警備、駐車場設備あり
- 備 考
-
■2026年1月、貸室・3階EVホール・トイレ・給湯室リニューアル工事完了予定 ■1階エントランスに入居者専用ラウンジあり ■貸室面積には、EVホール・トイレ・給湯室等の面積が含まれます。 ■貸主指定の保証会社(日商保)と保証委託契約を締結していただきます。 ※締結いただかない場合、敷金は賃料の10ヶ月分となります。
注) 上記の価格には、別途、消費税及び地方消費税が課されます。
消費税率が変更された場合には、以後、変更後の税率が課されることとなります。
物件情報更新日:2025-12-09
お気軽にお問合せください
キャンペーン実施中。詳細はお問合せ下さい。
この物件のお問合せ現在募集中の区画
- 階数
- 面積
- 賃料
- 共益費
- 間取図
