当社管理物件
セットアップオフィス
新耐震
@WORK SHINJUKUGYOEN
9階(東京都新宿区新宿)
当社管理物件
セットアップオフィス
新耐震
@WORK SHINJUKUGYOEN
9階(東京都新宿区新宿)
- 賃料(坪単価):
- 2,315,390円(@31,000円)
- 共益費(坪単価)
- :
- 賃料に含む (@―)
- 預託金(保証金/敷金)
- :
- ―(相談)
- 面積
- :
- 74.69坪 (246.92m²)
- 所在地
- :
- 東京都新宿区新宿2-1-9
- 最寄駅
- :
-
新宿御苑前駅まで徒歩1分
新宿三丁目駅まで徒歩5分
新宿三丁目駅まで徒歩5分
新宿駅まで徒歩10分
四谷三丁目駅まで徒歩13分
スタッフコメント
東京メトロ丸ノ内線【新宿御苑前駅】から徒歩1分!東京メトロ各線・都営新宿線【新宿三丁目駅】からも徒歩圏内の立地になります!新宿通りに面するオフィスビルです。1階には機械式駐車場が備わっており、間口の広いエントランスが目印となり来客が多いテナント様もお客様に分かりやすいビルです。2024年2月にリニューアルされたエントランスを進み2基あるエレベーターを上がると、リニューアル完了後には今どきのおしゃれなセットアップオフィスが広がります!室内には会議室など充実した設備を配置するリニューアルを施しました!ご興味ございましたら是非お問い合わせください。
担当:吉田 裕基 支店:新宿店 更新日:2026年3月6日
物件情報
所在地・アクセス
- 物件名
- @WORK SHINJUKUGYOEN 9階
- 所在地
- 東京都新宿区新宿2-1-9
- 最寄駅
-
東京メトロ丸ノ内線 新宿御苑前駅まで徒歩1分
都営新宿線 新宿三丁目駅まで徒歩5分
東京メトロ副都心線 新宿三丁目駅まで徒歩5分
JR山手線 新宿駅まで徒歩10分
東京メトロ丸ノ内線 四谷三丁目駅まで徒歩13分
賃貸条件
- 賃料(坪単価)
- 2,315,390円(@31,000円)
- 礼 金
- 無
- 共益費(坪単価)
- 賃料に含む(@―)
- 面 積
- 74.69坪 (246.92m²)
- 賃料+共益費(坪単価)
- 2,315,390円 (@31,000円)
- 償 却
- 無
- 預託金(保証金/敷金)
- ―(相談)
- 入居可能日
- 即日
- 更新料(再契約料)
- 無
- 契約期間
- 2年
物件概要
- 特 徴
- 構 造
- 鉄骨鉄筋コンクリート造/新耐震
- 物件タイプ
- 事務所
- 規 模
- 地下2階付9階建
- 取引態様
- 一般媒介
- 竣 工
- 1988年9月
- 設 備
-
E V :2基(11人乗)、天井高:―㎜、床仕様:OAフロア、空調:個別空調、トイレ:専用 男女別 洋式
その他:機械警備、駐車場設備あり
- 備 考
-
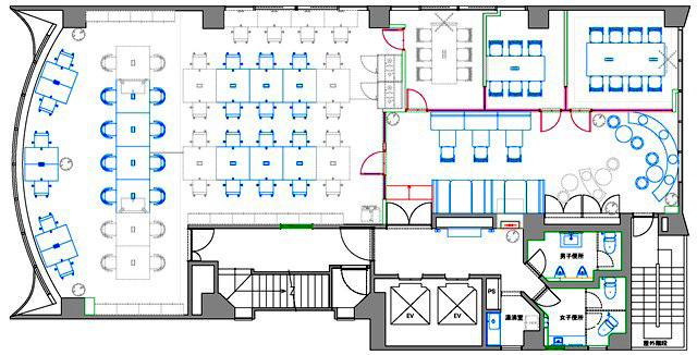
■2024年2月、エントランス・EVホール大規模リニューアル工事済 ■2026年2月、什器・内装造作付きセットアップ工事済(会議室・ラウンジ・執務室什器設置済) ■貸室面積には、トイレ・給湯室等の面積が含まれます。 ■貸主指定の保証会社と保証委託契約を締結していただきます。
注) 上記の価格には、別途、消費税及び地方消費税が課されます。
消費税率が変更された場合には、以後、変更後の税率が課されることとなります。
物件情報更新日:2026-03-05
お気軽にお問合せください
現在募集中の区画
- 階数
- 面積
- 賃料
- 共益費
- 間取図
- HOME
- >
- エリアから探す
- >
- 新宿区
- >
- 新宿・歌舞伎町・新宿御苑
- >
- @WORK SHINJUKUGYOEN
- >
- @WORK SHINJUKUGYOEN 9階
