新耐震
池袋KSビル
4階(東京都豊島区東池袋)
新耐震
池袋KSビル
4階(東京都豊島区東池袋)
- 賃料(坪単価):
- 1,000,272円(@15,600円)
- 共益費(坪単価)
- :
- 128,240円 (@2,000円)
- 預託金(保証金/敷金)
- :
- 6,001,632円(6ヶ月)
- 面積
- :
- 64.12坪 (211.96m²)
- 所在地
- :
- 東京都豊島区東池袋3-23-13
- 最寄駅
- :
-
東池袋駅まで徒歩9分
大塚駅まで徒歩9分
新大塚駅まで徒歩12分
池袋駅まで徒歩13分
池袋駅まで徒歩13分
物件情報
所在地・アクセス
- 物件名
- 池袋KSビル 4階
- 所在地
- 東京都豊島区東池袋3-23-13
- 最寄駅
-
東京メトロ有楽町線 東池袋駅まで徒歩9分
JR山手線 大塚駅まで徒歩9分
東京メトロ丸ノ内線 新大塚駅まで徒歩12分
JR山手線 池袋駅まで徒歩13分
東京メトロ丸ノ内線 池袋駅まで徒歩13分
賃貸条件
- 賃料(坪単価)
- 1,000,272円(@15,600円)
- 礼 金
- 賃料の1ヶ月分
- 共益費(坪単価)
- 128,240円(@2,000円)
- 面 積
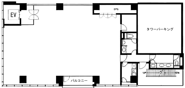
- 64.12坪 (211.96m²)
- 賃料+共益費(坪単価)
- 1,128,512円 (@17,600円)
- 償 却
- 保証金の10%
- 預託金(保証金/敷金)
- 6,001,632円(6ヶ月)
- 入居可能日
- 2026年3月予定
- 更新料(再契約料)
- 新賃料の1ヶ月分
- 契約期間
- 2年
物件概要
- 特 徴
- 構 造
- 鉄骨鉄筋コンクリート造・鉄骨造/新耐震
- 物件タイプ
- 事務所
- 規 模
- 地下1階付8階建
- 取引態様
- 一般媒介
- 竣 工
- 1992年1月
- 設 備
-
E V :1基、天井高:―㎜、床仕様:―、空調:個別空調、トイレ:専用 男女別 洋式
その他:駐車場設備あり
- 備 考
-
■貸主指定の火災保険にご加入いただきます。 ■貸主指定の保証会社と保証委託契約を締結していただきます。 ※締結いただかない場合、預託金額は賃料の10ヶ月分となります。
注) 上記の価格には、別途、消費税及び地方消費税が課されます。
消費税率が変更された場合には、以後、変更後の税率が課されることとなります。
物件情報更新日:2026-01-08
お気軽にお問合せください
現在募集中の区画
- 階数
- 面積
- 賃料
- 共益費
- 間取図
