
大京町は、古くから交通の要所として栄えました。新宿御苑を望む本物件は、外苑西通りに面し、国立競技場へ徒歩圏内です。そんな場所に、基準階面積約130坪のセットアップオフィスが募集開始となりました。ビジネスシーンを飛躍的に向上、人気の集まるエリアとなります。オフィス戦略=経営戦略という視点に立ち設計された室内は、生産性の向上だけで無く、人材採用にも役立つはずです。重厚感のあるエントランスは、来訪者を温かく迎える仕様に生まれ変わります。基準階に下りると、広々としたラウンジがお出迎え。そこで働く人も、そこに訪れる人も、自然とリラックスできるような空間にリニューアルされます。窓からは新宿御苑を望み、都心と緑の融和を感じることができます。クリエイティブな物件で、先進的で創造的なビジネス展開が期待できます。
※掲載内容とお引渡し状態が異なる場合は現況を優先させていただきます。
<リニューアル情報>
2020年8月 外観・エントランス・貸室内 工事完了
OVERVIEW
- 物件No.
- 1-1404
- 募集期間
- ご成約まで
- 所在地
- 新宿区大京町
- 最寄駅
-
東京メトロ丸ノ内線
四谷三丁目駅 徒歩5分
東京メトロ丸ノ内線
新宿御苑前駅 徒歩6分
JR中央線・総武線各駅停車
千駄ヶ谷駅 徒歩13分
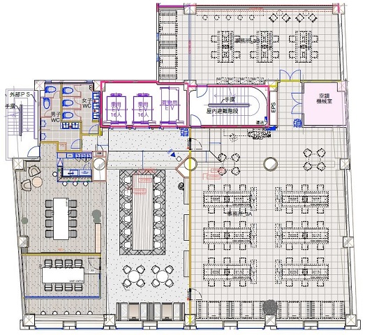
- 面積
- 153.59坪 / 507.75㎡
- 会議室
- 8名掛け会議室×1
- 推奨人数
- 60~70人
- 構造
- 鉄骨鉄筋コンクリート造
- 規模
- 地下1階付9階建
- 施工
- 1986年
- エレベーター
- 3基
- 天井の高さ
- 2,650mm
- 空調
- 個別空調
- トイレ
- 専用 男女別 洋式
- 床仕様
- OAフロア(H=70mm)
- 賃料
- 4,300,520円
- 共益費
- 賃料に含む
- 預託金
- 賃料の8ヶ月分
- 契約期間
- 3年
- 引き渡し時期
- 即日
- その他
- 更新料:無/ 償却:無/ 礼金:無/ 契約形態:普通賃貸借契約/ その他:契約の際には、貸主指定の保証会社と保証委託契約を締結していただきます。/
現在オンライン内覧が可能です
オンライン内覧について詳しくはこちら
CHECK IT!
この物件についてもっと詳しく
そのまんまオフィス会員
3つのメリット
-

物件の
詳細情報の公開 -

新着物件を
お知らせ -

未公開物件を
ご紹介
















