
本物件は【飯田橋駅】を中心に5路線が 利用可能な利便性の高い立地にございます。本物件の位置から3分ほど歩きますが、飯田橋駅周辺は飲食店舗が多く立ち並んでおり、ランチ時にも便利でございます。本貸室は、オーナー様の費用負担で内装工事 ・什器の設置・ 各貸室までの光ファイバーの引き込みがされておりますので、インターネット契約と配線作業が済み次第、すぐに業務を開始することができます。また、 今後、事業展開等で物件を退去される際は、貸室内の損傷・追加の内装工事等を実施していない限り、原状回復義務がありませんので、予め定められた1坪あたり6,000円のクリーニング費用しか掛かりません!そのため、入居時、退去時にかかるコストを最小限に削減できることが最大の魅力です。イニシャルコスト面としても敷金3ヶ月をベースにしておりますので、スタートアップ企業様を始めとする、多くの企業様にご検討頂き安い条件となっております。一見すると、サービスオフィスのような特色があるように思われるかもしれませんが、契約形態は普通借家契約となっておりますので、一般的な事務所に入居されるのと全く変わりが無く、2008年にはエントランス・EVホール等のリニューアル工事を実施しており、貸室だけでなく、ビル全体のグレード感も高くなっておりますので、来客の多い企業様にもぴったりではないでしょうか。
※掲載画像はイメージCGとなります。掲載内容とお引渡し状態が異なる場合は現況を優先させていただきます。
OVERVIEW
- 物件No.
- 2-2080
- 募集期間
- ご成約まで
- 所在地
- 新宿区下宮比町
- 最寄駅
-
JR中央線・総武線各駅停車
飯田橋駅 徒歩3分
東京メトロ有楽町線
飯田橋駅 徒歩3分
東京メトロ南北線
飯田橋駅 徒歩3分
- 面積
- 66.05坪 / 218.36㎡
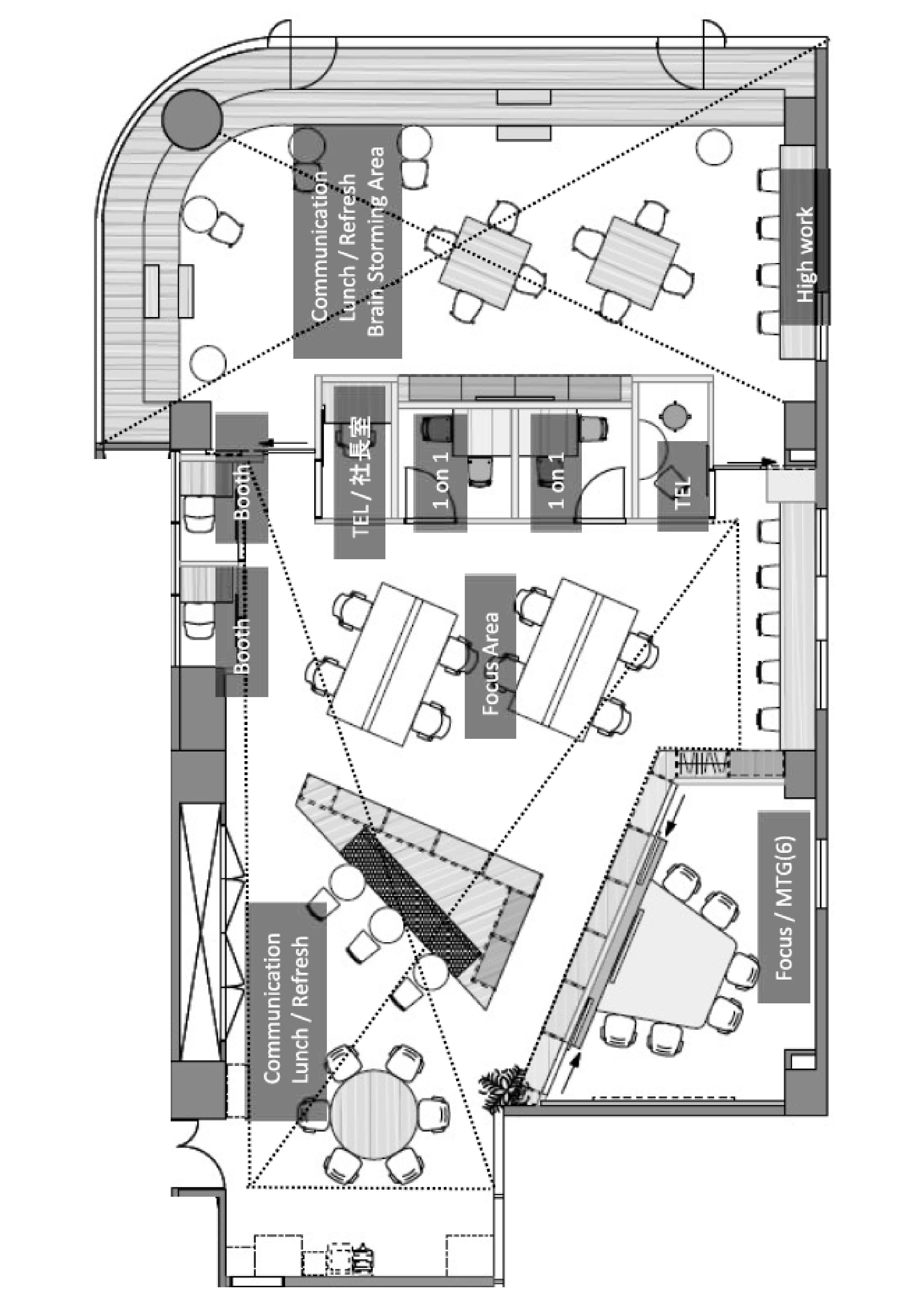
- 会議室
- 6名掛け会議室×1
phoneルーム×1
1on1ルーム×2
テレカンブース×2
- 推奨人数
- 45~47人
- 構造
- 鉄骨鉄筋コンクリート造
- 規模
- 地下1階付8階建
- 施工
- 1990年
- エレベーター
- 2基(11人乗)
- 天井の高さ
- 2,600mm
- 空調
- 個別空調
- トイレ
- 共用 男女別 洋式
- 床仕様
- OAフロア(H=40mm)
- 賃料
- ご相談
- 共益費
- 賃料に含む
- 預託金
- ご相談
- 契約期間
- 2年
- 引き渡し時期
- 2026年2月1日予定
- その他
- 更新料:無/ 償却:無/ 礼金:無/ 契約形態:普通賃貸借契約/ その他:原状回復工事不要※原状変更した場合、または汚損・破損がある場合は原状回復義務有り/退去時クリーニング費(坪当たり6,000円)/
現在オンライン内覧が可能です
オンライン内覧について詳しくはこちら
CHECK IT!
この物件についてもっと詳しく
そのまんまオフィス会員
3つのメリット
-

物件の
詳細情報の公開 -

新着物件を
お知らせ -

未公開物件を
ご紹介










