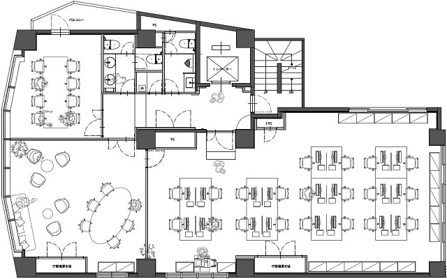
東京メトロ日比谷線【神谷町駅】徒歩7分、港区東麻布に洗練されたオフィスが登場!2018年6月にファサード、エントランス、エントランスホール、貸室内の大規模リニューアル工事完了!ファサード・エントランスホールはウッド基調の高級感且つ、カジュアルな雰囲気のスタイリッシュな空間に・・・専有部はシックな雰囲気の受付スペースを設え、カラスパーテーションを施したクールな空間が楽しめます。また、貸室内は天井を抜き、天井高3,030mmの開放感のある空間、且つ、オシャレなアクセントクロス・タイルカーペット・間接照明などを施し、洗練されたオフィス空間を演出します。貸室内、東側の窓面からは、東京タワーが一望でき、当物件ならではの雰囲気が楽しめます。普通のオフィスではなく、洗練された空間におこだわりのある企業様は是非とも一度ご内覧下さいませ。心より、お待ち申し上げております。
※掲載写真内の家具の付属はございません。予めご了承ください。また、掲載内容と現況が異なる場合は現況を優先させていただきます。
OVERVIEW
- 物件No.
- 2-2195
- 募集期間
- ご成約まで
- 所在地
- 港区東麻布
- 最寄駅
-
東京都交通局大江戸線
赤羽橋駅 徒歩6分
東京メトロ日比谷線
神谷町駅 徒歩7分
東京都交通局三田線
芝公園駅 徒歩11分
- 面積
- 54.31坪 / 179.55㎡
- 会議室
- 8名掛け会議室×1
- 推奨人数
- 25~28人
- 構造
- 鉄骨鉄筋コンクリート造
- 規模
- 10階建
- 施工
- 1986年
- エレベーター
- 1基
- 天井の高さ
- 2,450mm
- 空調
- 個別空調
- トイレ
- 専用 男女別 洋式
- 床仕様
- タイルカーペット
- 賃料
- 1,357,750円
- 共益費
- 賃料に含む
- 預託金
- 賃料の6ヶ月分
- 契約期間
- 2年
- 引き渡し時期
- 2025年11月15日予定
- その他
- 更新料:新賃料の1ヶ月分/ 償却:無/ 礼金:賃料の1ヶ月分/ 契約形態:普通賃貸借契約/ その他:契約の際には、貸主指定の保証会社と保証委託契約を締結していただきます。/
現在オンライン内覧が可能です
オンライン内覧について詳しくはこちら
CHECK IT!
この物件についてもっと詳しく
そのまんまオフィス会員
3つのメリット
-

物件の
詳細情報の公開 -

新着物件を
お知らせ -

未公開物件を
ご紹介
おすすめ物件
-
CAN RENT
【2-3869 Biz Feel 浜松町・原状回復工事・仲介手数料不要】JR浜松町駅徒歩3分!第一京浜沿いに所在する明るい立地にコンパクトセットアップオフィスが登場!
港区浜松町
14.82坪(49㎡)
会員限定
-
CAN RENT
【No.2-3690 THE PORTAL 田町/仲介手数料不要!】再開発が進む田町エリア!【三田駅】徒歩2分!アースカラーが特徴的な什器付フルセットアップオフィス!
港区芝
57.73坪(190.87㎡)
会員限定
-
CAN RENT
~運河を臨み、開放的な気分になれる港区のセットアップオフィス!~ 田町駅徒歩3分
港区芝浦
37.06坪(122.53㎡)








