
清洲橋通り沿いの角地に建つ視認性の良い存在感のあるビルで、1階にはコンビニが入居しております。2023年2月、エントランスリニューアル完成。落ち着きがありつつも高級感のあるエントランスで来客の方にも喜んでいただけるでしょう。また貸室内は、上品さと現代的な印象を感じられるデザインへ。仕事場でありながらも遊び心を忘れないオフィスにリニューアル工事を実施いたしました(2022年12月完成)。水回りは洗面台、便器全てを入れ替え、受付台や会議室3室もあらかじめ設置しております。周辺環境は繊維や服飾関係の問屋が集まる街から近年はリノベーションによる古い建物の再利用により、個性あるギャラリーやショップが集うクリエイターの街へと変化しております。
※掲載内容とお引渡し状態が異なる場合は現況を優先させていただきます。
photographer:星野 佑
OVERVIEW
- 物件No.
- 2-2603
- 募集期間
- ご成約まで
- 所在地
- 中央区日本橋久松町
- 最寄駅
-
東京都交通局新宿線
馬喰横山駅 徒歩3分
東京都交通局浅草線
東日本橋駅 徒歩3分
東京都交通局浅草線
人形町駅 徒歩6分
- 面積
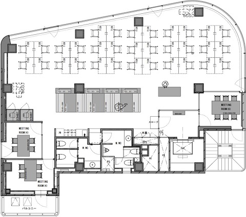
- 60.95坪 / 201.5㎡
- 会議室
- 4名掛け会議室×2
6名掛け会議室×1
- 推奨人数
- 30~32人
- 構造
- 鉄骨造
- 規模
- 9階建
- 施工
- 1988年
- エレベーター
- 1基(9人乗)
- 天井の高さ
- 3,270mm
- 空調
- 個別空調
- トイレ
- 専用 男女別 洋式
- 床仕様
- OAフロア
- 賃料
- 1,310,425円
- 共益費
- 賃料に含む
- 預託金
- 賃料の6ヶ月分
- 契約期間
- 2年
- 引き渡し時期
- 2026年6月中旬予定
- その他
- 更新料:無/ 償却:無/ 礼金:無/ 契約形態:普通賃貸借契約/ その他:貸主指定の清掃会社と貸室内の清掃契約を締結していただきます。/契約の際には、SFビルサポート株式会社会社と保証委託契約を締結していただきます。※与信状況によって預託金額が変動する場合がございます。/
360°CAMERA
現在オンライン内覧が可能です
オンライン内覧について詳しくはこちら
CHECK IT!
この物件についてもっと詳しく
そのまんまオフィス会員
3つのメリット
-

物件の
詳細情報の公開 -

新着物件を
お知らせ -

未公開物件を
ご紹介


















