
敷金1ヶ月、原状回復義務無し物件!(※現状変更した場合や破損等を除く)
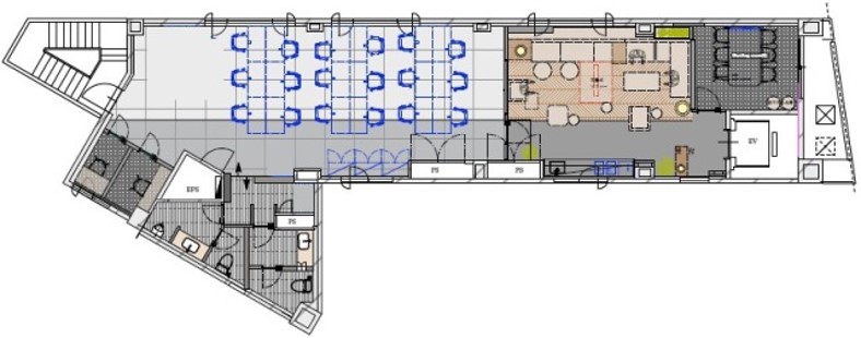
内装、会議室、オフィス家具が備わったセットアップオフィスです。【市ヶ谷駅】、【四ツ谷駅】の両駅徒歩8分圏内で最大6路線利用可能なアクセスに優れ、外濠を臨む景観も抜群な好立地。基準階は約43坪と近隣にはありそうで無かった手ごろな広さです。1社様でワンフロアを占有することが出来、室内には6名用(最大8名)会議室、テレカンブース、ラウンジスペース等様々なシーンや働き方に合わせて利用できる機能性、快適性に優れた空間・内装を施しております。特にラウンジスペースは少し気分を変えて働きたいときや、社員さん同士のコミュニケーションの場、ちょっとしたミーティング等にも利用できるコミュニティスペースとなっております。現地案内もご可能ですので是非一度内見にお越し下さいませ。お問合せお待ちしております。
photographer:星野 佑
OVERVIEW
- 物件No.
- 2-3414
- 募集期間
- ご成約まで
- 所在地
- 新宿区市谷本村町
- 最寄駅
-
JR中央線・総武線各駅停車
市ヶ谷駅 徒歩6分
東京メトロ有楽町線
市ヶ谷駅 徒歩3分
東京メトロ丸ノ内線
四ツ谷駅 徒歩8分
- 面積
- 43.2坪 / 142.82㎡
- 会議室
- 6名掛け会議室×1
- 推奨人数
- 18~22人
- 構造
- 鉄骨造
- 規模
- 10階建
- 施工
- 1995年
- エレベーター
- 1基(11人乗)
- 天井の高さ
- ―
- 空調
- 個別空調
- トイレ
- 専用 男女別 洋式
- 床使用
- OAフロア
- 賃料
- 1,209,600円
- 共益費
- 賃料に含む
- 預託金
- 税込賃料の1ヶ月分
- 契約期間
- 2年
- 引き渡し時期
- 即日
- その他
- 更新料:無/ 償却:賃料の1ヶ月分/ 礼金:無/ 契約形態:普通賃貸借契約/ その他:契約の際には、SFビルサポート株式会社と保証委託契約を締結していただきます。※与信状況によって預託金額が変動する場合がございます。/クリーニング費用:入居時ご負担いただきます。(250,000円)/貸主指定の清掃会社と貸室内の清掃契約を締結していただきます。/原状回復ありプランも利用可能⇒賃料:月額1,080,000円(坪単価25,000円)、敷金:税込賃料の6ヶ月分/
現在オンライン内覧が可能です
オンライン内覧について詳しくはこちら
CHECK IT!
この物件についてもっと詳しく
そのまんまオフィス会員
3つのメリット
-

物件の
詳細情報の公開 -

新着物件を
お知らせ -

未公開物件を
ご紹介


















