
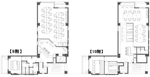
金融・証券の街として発展を続けてきた「日本橋茅場町」は、東京証券取引所をはじめとした証券会社各社や多数の上場企業本社等、多くのビジネスマンで賑わう街です。そんな茅場町の駅前に、預託金無し※1・原状回復無し※2・執務室什器やWi-Fi機器設置済みのセットアップオフィスが登場しました!9階・10階のメゾネット区画となり、9階のエレベーターを降りると広々としたラウンジスペースが広がります。執務室は2エリアに分かれており、9階に20名分・10階に16人分の什器を設置。会議室3室のほか、ファミレスブース・バーカウンターに加えテレカンブース2室と、多様なワークスペースを備え、テナント様の働き方に寄り添うオフィスへ生まれ変わりました!窓際からは幅員30m超の新大橋通りを見下ろすことができる立地です。ぜひ現地ご内覧にお越しください!
※1 与信状況によって預託をお願いする場合がございます。
※2 現状変更した場合や破損等を除きます。
※掲載内容はイメージCGとなる為、お引渡し状態は現況を優先させていただきます。
OVERVIEW
- 物件No.
- 2-3608
- 募集期間
- ご成約まで
- 所在地
- 中央区日本橋茅場町
- 最寄駅
-
東京メトロ日比谷線
茅場町駅 徒歩1分
東京メトロ東西線
茅場町駅 徒歩1分
東京メトロ銀座線
日本橋駅 徒歩4分
- 面積
- 71.68坪 / 236.99㎡
- 会議室
- 6名掛け会議室×2
8名掛け会議室×1
- 推奨人数
- 30~36人
- 構造
- 鉄骨鉄筋コンクリート造
- 規模
- 地下1階付10階建
- 施工
- 1985年
- エレベーター
- 1基(6人乗)
- 天井の高さ
- ―
- 空調
- 個別空調
- トイレ
- 専用 男女別 洋式
- 床使用
- OAフロア
- 賃料
- 2,078,720円
- 共益費
- 賃料に含む
- 預託金
- 無
- 契約期間
- 2年
- 引き渡し時期
- 即日
- その他
- 更新料:無/ 償却:無/ 礼金:無/ 契約形態:普通賃貸借契約/ その他:契約開始より12ヶ月間解約不可(12ヶ月間以内解約の場合、違約金が発生いたします)/原状回復義務なし(現状変更した場合や破損等を除く)/クリーニング費用をご負担いただきます(契約時)/貸主指定の清掃会社と貸室内の清掃契約を締結していただきます。/契約の際には、SFビルサポート株式会社会社と保証委託契約を締結していただきます。※与信状況によって預託をお願いする場合がございます。/
現在オンライン内覧が可能です
オンライン内覧について詳しくはこちら
CHECK IT!
この物件についてもっと詳しく
そのまんまオフィス会員
3つのメリット
-

物件の
詳細情報の公開 -

新着物件を
お知らせ -

未公開物件を
ご紹介


















