
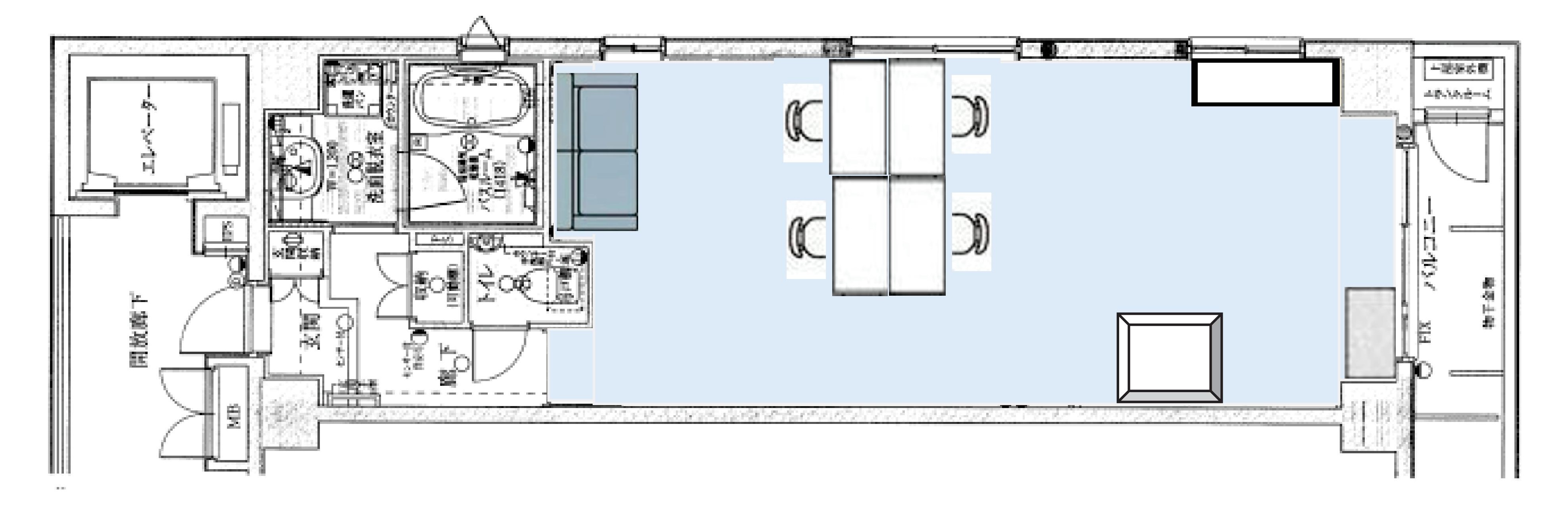
中央区築地にあるSOHO利用が可能なオフィスです。内装をリノベーション済みで、ワークデスクやソファなどの什器を設置しております。テレブースやキッチン、お風呂も完備されているので、住居兼事務所(SOHO)としてもご利用いただけます。オートロックや防犯カメラ、エレベーターもあり、セキュリティ面も安心です。スタートアップ企業や外国籍の方にもおすすめで、すぐにビジネスをスタートできる環境が整っています。気になる方はぜひお気軽にご相談ください。新しい働き方を始めたい方にぴったりのオフィスです。
※掲載内容と現況が異なる場合は現況を優先させていただきます。
OVERVIEW
- 物件No.
- 2-3726
- 募集期間
- ご成約まで
- 所在地
- 中央区築地
- 最寄駅
-
東京メトロ日比谷線
築地駅 徒歩1分
東京メトロ有楽町線
新富町駅 徒歩4分
東京都交通局浅草線
東銀座駅 徒歩7分
- 面積
- 16.72坪 / 55.29㎡
- 会議室
- 無し
- 推奨人数
- 3~4名
- 構造
- 鉄筋コンクリート造
- 規模
- 14階建
- 施工
- 2005年
- エレベーター
- 有り
- 天井の高さ
- ―
- 空調
- 個別空調
- トイレ
- 専用 男女共用 洋式
- 床仕様
- ―
- 賃料
- 395,200円
- 共益費
- 賃料に含む
- 預託金
- 賃料の1ヶ月分
- 契約期間
- 2年
- 引き渡し時期
- 即日
- その他
- 更新料:新賃料の1ヶ月分/ 償却:賃料の1ヶ月分/ 礼金:賃料の1ヶ月分/ 契約形態:普通賃貸借契約/ その他:契約の際には、貸主指定の保証会社と保証委託契約を締結していただきます。/
現在オンライン内覧が可能です
オンライン内覧について詳しくはこちら
CHECK IT!
この物件についてもっと詳しく
そのまんまオフィス会員
3つのメリット
-

物件の
詳細情報の公開 -

新着物件を
お知らせ -

未公開物件を
ご紹介
















