新耐震
ベネックスS-3
10階(神奈川県横浜市港北区新横浜)
新耐震
ベネックスS-3
10階(神奈川県横浜市港北区新横浜)
- 賃料(坪単価):
- 相談(@―)
- 共益費(坪単価)
- :
- 相談 (@―)
- 預託金(保証金/敷金)
- :
- 相談(―)
- 面積
- :
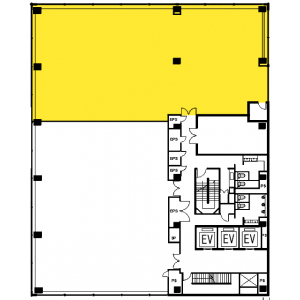
- 96.39坪 (318.67m²)
- 所在地
- :
- 神奈川県横浜市港北区新横浜3-20-8
- 最寄駅
- :
-
新横浜駅まで徒歩5分
新横浜駅まで徒歩6分
新横浜駅まで徒歩6分
新横浜駅まで徒歩6分
北新横浜駅まで徒歩14分
物件情報
所在地・アクセス
- 物件名
- ベネックスS-3 10階
- 所在地
- 神奈川県横浜市港北区新横浜3-20-8
- 最寄駅
-
横浜市営ブルーライン 新横浜駅まで徒歩5分
JR横浜線 新横浜駅まで徒歩6分
相鉄新横浜線 新横浜駅まで徒歩6分
東急新横浜線 新横浜駅まで徒歩6分
横浜市営ブルーライン 北新横浜駅まで徒歩14分
賃貸条件
- 賃料(坪単価)
- 相談(@―)
- 礼 金
- 相談
- 共益費(坪単価)
- 相談(@―)
- 面 積
- 96.39坪 (318.67m²)
- 賃料+共益費(坪単価)
- 相談 (@―)
- 償 却
- 相談
- 預託金(保証金/敷金)
- 相談(―)
- 入居可能日
- 相談
- 更新料(再契約料)
- 相談
- 契約期間
- 相談
物件概要
- 特 徴
- 構 造
- 鉄骨造/新耐震
- 物件タイプ
- 事務所
- 規 模
- 地下1階付12階建
- 取引態様
- 一般媒介
- 竣 工
- 1994年3月
- 設 備
-
E V :3基、天井高:2600㎜、床仕様:OAフロア(H=80mm)、空調:セントラル、トイレ:共用 男女別 洋式
その他:機械警備、駐車場設備あり
- 備 考
- お問い合わせください。
物件情報更新日:2026-02-27
お気軽にお問合せください
現在募集中の区画
- 階数
- 面積
- 賃料
- 共益費
- 間取図
