新耐震
新横浜交通ビル
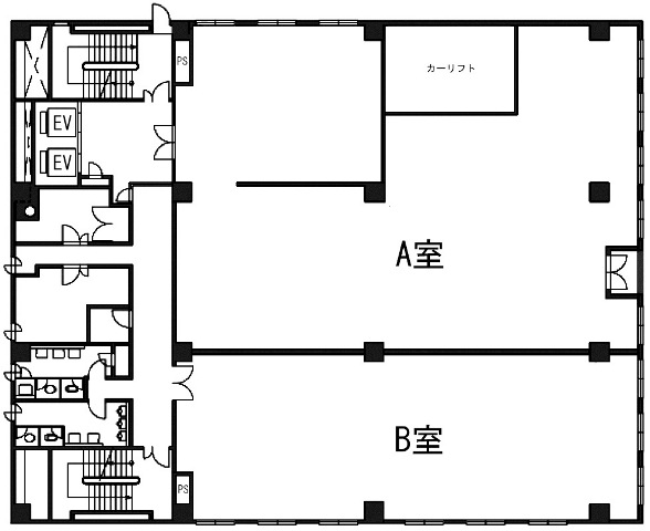
6階A室(神奈川県横浜市港北区新横浜)
新耐震
新横浜交通ビル
6階A室(神奈川県横浜市港北区新横浜)
- 賃料(坪単価):
- 1,198,920円(@12,000円)
- 共益費(坪単価)
- :
- 299,730円 (@3,000円)
- 預託金(保証金/敷金)
- :
- 11,989,200円(10ヶ月)
- 面積
- :
- 99.91坪 (330.28m²)
- 所在地
- :
- 神奈川県横浜市港北区新横浜3-18-16
- 最寄駅
- :
-
新横浜駅まで徒歩2分
新横浜駅まで徒歩5分
新横浜駅まで徒歩5分
新横浜駅まで徒歩5分
物件情報
所在地・アクセス
- 物件名
- 新横浜交通ビル 6階A室
- 所在地
- 神奈川県横浜市港北区新横浜3-18-16
- 最寄駅
-
横浜市営ブルーライン 新横浜駅まで徒歩2分
JR横浜線 新横浜駅まで徒歩5分
相鉄新横浜線 新横浜駅まで徒歩5分
東急新横浜線 新横浜駅まで徒歩5分
賃貸条件
- 賃料(坪単価)
- 1,198,920円(@12,000円)
- 礼 金
- 無
- 共益費(坪単価)
- 299,730円(@3,000円)
- 面 積
- 99.91坪 (330.28m²)
- 賃料+共益費(坪単価)
- 1,498,650円 (@15,000円)
- 償 却
- 賃料の2ヶ月分
- 預託金(保証金/敷金)
- 11,989,200円(10ヶ月)
- 入居可能日
- 2026年4月1日予定
- 更新料(再契約料)
- 無
- 契約期間
- 2年
物件概要
- 特 徴
- 構 造
- 鉄骨鉄筋コンクリート造/新耐震
- 物件タイプ
- 事務所
- 規 模
- 地下2階付7階建
- 取引態様
- 一般媒介
- 竣 工
- 1983年11月
- 設 備
-
E V :2基(11人乗)、天井高:2500㎜、床仕様:OAフロア、空調:個別空調、トイレ:共用 男女別 洋式
その他:機械警備、駐車場設備あり
- 備 考
-
■機械警備料:月額15,000円
注) 上記の価格には、別途、消費税及び地方消費税が課されます。
消費税率が変更された場合には、以後、変更後の税率が課されることとなります。
物件情報更新日:2025-12-05
お気軽にお問合せください
