新耐震
日興池袋ビル (旧:トウセン池袋ビル)
4階(東京都豊島区池袋)
新耐震
日興池袋ビル (旧:トウセン池袋ビル)
4階(東京都豊島区池袋)
- 賃料(坪単価):
- 397,500円(@10,600円)
- 共益費(坪単価)
- :
- 15,000円 (@400円)
- 預託金(保証金/敷金)
- :
- 1,590,000円(4ヶ月)
- 面積
- :
- 37.50坪 (123.97m²)
- 所在地
- :
- 東京都豊島区池袋4-29-11
- 最寄駅
- :
-
池袋駅まで徒歩10分
池袋駅まで徒歩10分
池袋駅まで徒歩10分
池袋駅まで徒歩10分
池袋駅まで徒歩10分
物件情報
所在地・アクセス
- 物件名
- 日興池袋ビル (旧:トウセン池袋ビル) 4階
- 所在地
- 東京都豊島区池袋4-29-11
- 最寄駅
-
JR山手線 池袋駅まで徒歩10分
東京メトロ丸ノ内線 池袋駅まで徒歩10分
東京メトロ副都心線 池袋駅まで徒歩10分
西武池袋線 池袋駅まで徒歩10分
東武東上線 池袋駅まで徒歩10分
賃貸条件
- 賃料(坪単価)
- 397,500円(@10,600円)
- 礼 金
- 無
- 共益費(坪単価)
- 15,000円(@400円)
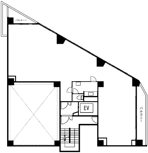
- 面 積
- 37.50坪 (123.97m²)
- 賃料+共益費(坪単価)
- 412,500円 (@11,000円)
- 償 却
- 無
- 預託金(保証金/敷金)
- 1,590,000円(4ヶ月)
- 入居可能日
- 即日
- 更新料(再契約料)
- 新賃料の1ヶ月分
- 契約期間
- 2年
物件概要
- 特 徴
-
- 構 造
- 鉄骨鉄筋コンクリート造/新耐震
- 物件タイプ
- 事務所
- 規 模
- 9階建
- 取引態様
- 一般媒介
- 竣 工
- 1985年12月
- 設 備
-
E V :1基、天井高:―㎜、床仕様:―、空調:個別空調、トイレ:専用 男女共用 洋式
- 備 考
-
■鍵交換費用:25,000円 ■貸主指定の火災保険にご加入いただきます。 ■貸主指定の保証会社(ジェイリース)と保証委託契約を締結していただきます。
注) 上記の価格には、別途、消費税及び地方消費税が課されます。
消費税率が変更された場合には、以後、変更後の税率が課されることとなります。
物件情報更新日:2026-03-26
お気軽にお問合せください
現在募集中の区画
- 階数
- 面積
- 賃料
- 共益費
- 間取図
- HOME
- >
- エリアから探す
- >
- 豊島区
- >
- 池袋
- >
- 日興池袋ビル (旧:トウセン池袋ビル)
- >
- 日興池袋ビル (旧:トウセン池袋ビル) 4階
